梵悦108 70年住宅 国贸新房 团购优惠99w,教育优,
-
2000万
总价
-
2室2厅2卫
户型
-
260㎡
建筑面积
买房加房产交流群,省钱不踩雷
3000+人正在热聊
加入群聊
-
单价
76923元/平米
- 挂牌价格解析
-
楼层
底层/1层
- 咨询楼层
-
套内
231.4㎡
- 咨询套内使用面积
-
楼型
板楼
-
朝向
南北
-
装修
精装修
-
年代
2024
-
发布
2025-12-05
-
地铁
距1号线(八通线)国贸站约567米
-
咨询总首付
首付约678.5万
首付税费及佣金情况 -
深度测评
小区阳光城·梵悦108(朝阳-国贸)
-
更多
楼户比、楼层高度、交易历史、抵押信息
房源描述(1)
周边配套
地址:国贸桥东南角建国路乙108号
本月均价 103936元/m²
环比上月 下跌 1.78%
同比去年 下跌 5.79%
猜你喜欢
同小区其它房源
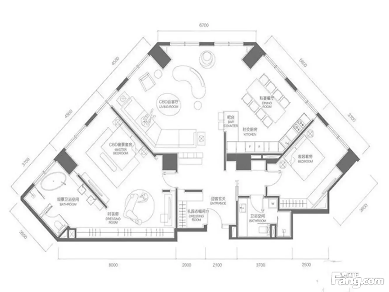
户型齐全,主打南北通透,户型方正一居
阳光城·梵悦108户型主要有97平-182平的南北通透,户型方正的一居 、145平-260平的全明格局,户型方正的二居 。
*获取完整户型报告,同时会有免费语音讲解服务
-
67825元/㎡
本月挂牌均价
-
0.41%
环比上月
买房加房产交流群,省钱不踩雷
3000+人正在热聊
加入群聊
- 免费咨询
- 专业服务
- 区域解读
- 户型分析
免责声明:房源信息由网站用户提供,其真实性、合法性由信息提供者负责,最终以政府部门登记备案为准。本网站不声明或保证内容之正确性和可靠性,购买该房屋时,请谨慎核查。入学情况仅凭历史经验总结,在此不承诺升学事宜。请您在签订合同之前,切勿支付任何形式的费用,以免上当受骗。


