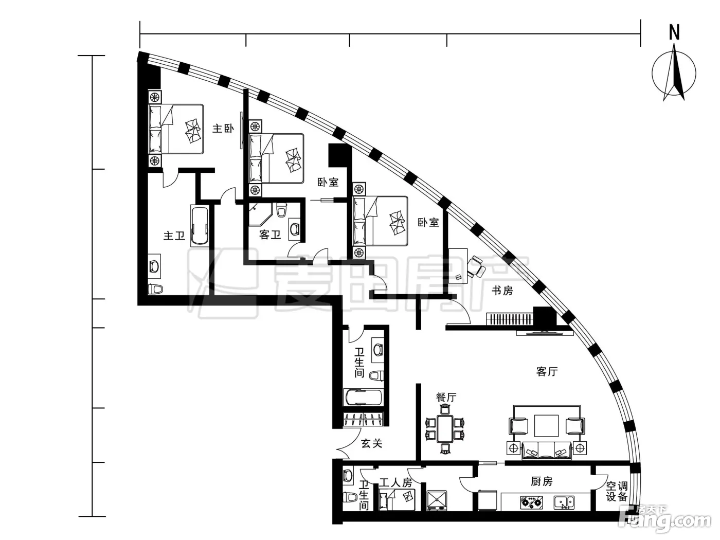
4室1厅三里屯SOHO公寓
-
1400万
总价
-
4室1厅3卫
户型
-
253.4㎡
建筑面积
买房加房产交流群,省钱不踩雷
3000+人正在热聊
-
单价
55249元/平米
- 挂牌价格解析
-
楼层
中层/32层
- 咨询楼层
-
套内
226.92㎡
- 咨询套内使用面积
-
楼型
塔楼
-
朝向
东北
-
装修
精装修
-
年代
2010
-
发布
2025-02-05
-
地铁
距17号线工人体育场站约367米
-
咨询总首付
首付约463.5万
首付税费及佣金情况 -
深度测评
小区三里屯SOHO(朝阳-工体)
-
更多
楼户比、楼层高度、交易历史、抵押信息
房源描述(1)
-
核心卖点问经纪人
1、属于成熟小区,可购房入户。 2、卧室私密性好,非常温馨,客厅宽敞,非常通风,很高。 3、楼层好,视野好,采光好。 4、看房特别方便,房东诚心出售 。 5、周边配套设施完善
-
业主心态问经纪人
房东人很好说话,为人亲和,房子嘛只要您看中了,价格还有的谈的,看房方便,业主诚意出售
-
小区配套问经纪人
三里屯SOHO的建筑师隈研吾先生是著名的日本建筑师,曾获多项国际大奖。项目体现了使用多种材质、外观呈曲线的隈研吾式风格,表达出自然、有机的整体语言。除了建筑的整体设计外,隈研吾先生及其团队还负责商业空间的室内设计,参与三里屯SOHO室内设计的还有来自新加坡的MinistryofDesign设计公司,来自意大利的设计总监SilviaMinciarelli带领的Spaces有限公司,他们分别负责公寓的室内设计,以及日本的迫庆一郎建筑设计工社(SAKOArchitects),负责写字楼的室内设计。,北京国际化气氛和传统的区域,其独特的消费文化及娱乐气息闻名中外
-
服务介绍问经纪人
本人从事房地产经纪行业多年,了解周边小区的物业及生活配套情况,客户满意,是我的职业追求,我相信,拥有专业的知识及真诚的服务才能获得共赢。
-
税费分析房贷计算
产权干净,税费清晰,欢迎来电咨询该房屋详情,静候您的来电!
周边配套
交通综合评分
查看全部超过北京39.8%的小区
-
地铁公交
10.0
-
驾车出行
10.0
-
城际交通
4.5
本月均价 66391元/m²
环比上月 上涨 0.28%
同比去年 上涨 165.19%
猜你喜欢
同小区其它房源
户型齐全,主打独立衣帽间二居
三里屯SOHO户型主要有121平-168平的独立衣帽间的二居 、140平-209平的明厨的三居 、108平-800平的明厨的一居 。
*获取完整户型报告,同时会有免费语音讲解服务
买房加房产交流群,省钱不踩雷
3000+人正在热聊
- 免费咨询
- 专业服务
- 区域解读
- 户型分析


