奥森公园西门 08年社区 1层带院 不临街 人车分流
-
1799万
总价
-
4室2厅2卫
户型
-
183.09㎡
建筑面积
买房加房产交流群,省钱不踩雷
3000+人正在热聊
-
单价
98258元/平米
- 挂牌价格解析
-
楼层
底层/6层
- 咨询楼层
-
套内
暂无数据
- 咨询套内使用面积
-
楼型
板楼
-
朝向
南北
-
装修
精装修
-
年代
2008
-
发布
2026-01-06
-
地铁
距15号线北沙滩站约1067米
-
咨询总首付
首付约611万
首付税费及佣金情况 -
深度测评
小区澳林春天六期(朝阳-奥林匹克公园)
-
更多
楼户比、楼层高度、交易历史、抵押信息
房源描述(1)
-
核心卖点问经纪人
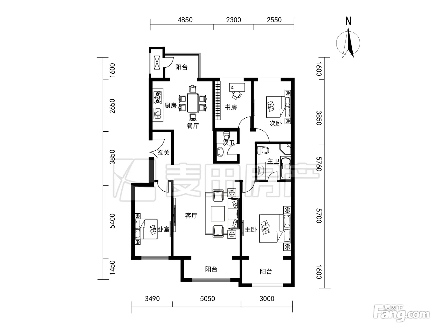
1、户型:澳林春天六期(澳林官邸)洋房社区,17号楼,一层带院眼镜户型四居室,双卧客厅南向,餐客厅南北直线通透。主卧客厅超大的落地阳台,户型方正,6层电梯板楼。 2、装修:居家装修 3、环境:纯人车分流,完全封闭管理,环境很好,人文素质高,隔着马路就是奥林匹克森林公园西门。 4、位置:位于奥林匹克森林公园西门,8号线林萃桥和15号线奥林匹克公园站,环境好。生活配套成熟,衣食出行便利齐全,华创生活卖场,各种小型日用品店,多线路穿行。 5、与周边小区对比:奥森西门的一处洋房,具备稀/缺性。小区40%的绿化,物业费3.48。
-
业主心态问经纪人
我和此房业主陈女士面谈过,了解其售房动向,能够及时为您提供房源变化,诚意出售,也了解小区成交走势,价格能谈,期待有缘人的光临。看房提前和我打电话即可。看房有钥匙。
-
小区配套问经纪人
小区位于北四环到北五环之间,处林萃路西侧、科荟路北侧,紧邻万亩奥林匹克森林公园 ;小区均为六层电梯板楼,房屋使用率88%。小区人车分流,单元电梯入户,房间落地大阳台落地窗,带地暖和中央空调;高端物业管理,社区干净整洁;紧邻北京师范大学朝阳附属中学、小学,北大为明幼儿园,小孩上学特别方便。
-
服务介绍问经纪人
【个人简介】我服务奥林匹克森林公园周边业主7年,熟悉周边产品,秉承公司利他文化,以诚待人,保证服务交易安全,高效,透明。赢得客户信任是我持续追求的方向。全北京新房都有合作,享受团购优惠价。
-
税费分析房贷计算
我看过房本原件,产权干净,税费清晰,有28万的税费,欢迎来电咨询该房屋详情,静候您的来电!
-
户型解读问经纪人
澳林春天六期(澳林官邸)洋房社区,17号楼,一层带院眼镜户型四居室,双卧客厅南向,餐客厅南北直线通透。主卧客厅超大的落地阳台,户型方正,6层电梯板楼。
周边配套
交通综合评分
查看全部超过北京97.3%的小区
-
地铁公交
10.0
-
驾车出行
10.0
本月均价 94058元/m²
环比上月 下跌 0.92%
同比去年 下跌 0.74%
猜你喜欢
同小区其它房源
-
73534元/㎡
本月挂牌均价
-
0.76%
环比上月
买房加房产交流群,省钱不踩雷
3000+人正在热聊
- 免费咨询
- 专业服务
- 区域解读
- 户型分析


