国企地产品牌 低密洋房,精装交付,两居至四居,高
-
245万
总价
-
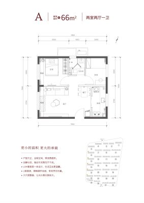
2室1厅1卫
户型
-
66㎡
建筑面积
买房加房产交流群,省钱不踩雷
3000+人正在热聊
-
单价
37121元/平米
- 挂牌价格解析
-
楼层
中层/10层
- 咨询楼层
-
套内
暂无数据
- 咨询套内使用面积
-
楼型
板楼
-
朝向
南北
-
装修
简装修
-
发布
2025-03-04
-
咨询总首付
首付约72.2万
首付税费及佣金情况 -
深度测评
小区北京城建·国誉燕园(昌平-高教园)
-
更多
楼户比、楼层高度、交易历史、抵押信息
房源描述(1)
-
核心卖点问经纪人
项目名称 :国誉燕园 区位板块 昌平马池口 开 发 商 :北京城建 北京城建集团 项目地址 :北京市昌平区马池口土城新村 产品类型 :普通住宅 产权年限 70年 项目单价 :39000元/平 项目总价区间 :226万元/套—515万元/套 物业公司 :城建物业管理有限公司 物 业 费 :3.95元/㎡ 占地面积 96800平米 总建筑面积 174000平米 总楼栋数 :29栋 总 户 数 :1788户 容 积 率 :1.8 绿 化 率 :40% 梯 户 比 :1梯2户/1梯3户 车 位 1:1.3 交房时间 :2025年10月 交房标准 :非毛坯 水 电 暖 民水民电、集中供暖 室内层高 :2.95米 总 楼 层 6层-10层
-
业主心态问经纪人
业主靠谱卖,看房随时
-
小区配套问经纪人
一、区域配套 交通 :北六环,顺沙路,北清路,上庄路,京新高速,京藏高速 教育 :北大附配套+,优学优教,距离北京大学新校区约1.5公里 医疗 :马池口社区卫生服务中心(4.1公里)、昌平区中医医院三甲(8.2公里) 积水潭医院回龙观院 区三甲医院,昌平区中西医结合医院三甲(18.3公 里) 商业:整体规划4.98万平米商业配套,小区内配套下沉式商业,周边合生汇, 路劲广场等 园林 新中式
-
税费分析房贷计算
只有契税,首套30%
-
户型解读问经纪人
在售产品 户型名称 户型面积 居室 产品报价 朝向 剩余套数 A 66-75㎡ 两居 66平米245万起 75平米281万起 东西/西南 剩余套数:35套 详细说明:66平米东西朝向8套,75平米西南朝向27套 B -98㎡ 三居 78平米292万起 88平米327万起 96平米365万起 98平米373万起 南北 剩余套数:450套 详细说明:78平米150套,88平米50套,96平米100套,98平米150套 C -127㎡ 四居 108平米407万起 109平米438万起 117平米445万起 127平米488万起 南北 剩余套数:250套 详
周边配套
交通综合评分
查看全部超过北京0.0%的小区
-
地铁公交
5.0
-
驾车出行
10.0
本月均价 30990元/m²
环比上月 上涨 2.97%
同比去年 下跌 11.31%
户型齐全,主打南北通透,采光充足三居
北京城建·国誉燕园博雅户型主要有78平-108平的南北通透,采光充足的三居 、108平-134平的南北通透,采光充足的四居 、66平-75平的采光充足,明卫的二居 。
*获取完整户型报告,同时会有免费语音讲解服务
买房加房产交流群,省钱不踩雷
3000+人正在热聊
- 免费咨询
- 专业服务
- 区域解读
- 户型分析


