石景山区,工抵房1套 依山傍水 源山春秋3种户型 请看描述
-
2248万
总价
-
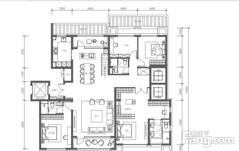
4室2厅3卫
户型
-
350㎡
建筑面积
买房加房产交流群,省钱不踩雷
3000+人正在热聊
-
单价
64229元/平米
- 挂牌价格解析
-
楼层
底层/6层
- 咨询楼层
-
套内
304.5㎡
- 咨询套内使用面积
-
楼型
板楼
-
朝向
南北
-
装修
简装修
-
年代
2006
-
发布
2025-12-06
-
地铁
距1号线(八通线)福寿岭站约571米
-
咨询总首付
首付约743.7万
首付税费及佣金情况 -
深度测评
小区远洋·源山春秋(石景山-八大处)
-
更多
楼户比、楼层高度、交易历史、抵押信息
房源描述(1)
-
核心卖点问经纪人
网站温馨提示:在线咨询,消息可能会延迟,可选择打电话咨询,24在线接听 在售户型信息:(联系我,了解优惠,带您看房)1 【建面350㎡3居】2467万,3室2厅3卫,南·北朝向,工抵房(一层院125平) 【建面210㎡4居】2270万,4室2厅3卫,南·北朝向, 【建面440㎡4居】2850万,4室2厅3卫,南·北朝向, 【建面380㎡4居】2650万,4室2厅3卫,南·北朝向, 交房时间:1 地理位置:西山八大处脚下,北京保险产业园西侧 交通优势:到1号线福寿岭地铁站500米,6号线杨庄地铁站1900米。 出门沿永引渠南路五环 配套优势:配套远洋春秋里、京西大悦城、8万平米墅区等繁华、医疗、自然资源环伺。 保险产业园建国酒店,生活,咖啡厅配套齐全 园林绿化:台地设计打造优美内部园林环境。 邻西山、背山面水、三山环绕; 文化及古迹优势:八大处、法海寺、佛牙舍利塔;西山城市低密项目,延续天著春秋打造理念,存在产品属性和土地属性的优势性。景观亮点:匠营太师椅布局,打造6米台地落差墅境,让建筑与西山景致融为一体 1
-
业主心态问经纪人
欢迎看房1 随时恭候。
-
小区配套问经纪人
小区地理位置佳,绿化环境优越整洁,居民素质高,物业管理完善,适宜1
-
服务介绍问经纪人
本人做房产多年,一直本着专业的房产知识,为您服务,我会在短的时间内帮您买好满意的房子,不让您错失任何好房子,更不让您每天为买房的事烦心,欢迎随时拨打我电话1
-
税费分析房贷计算
关于本房的税费信息情况,请电话联系我,我将详细的为您讲解1
周边配套
交通综合评分
查看全部超过北京0.0%的小区
-
地铁公交
9.0
-
城际交通
4.0
本月均价 67087元/m²
环比上月 下跌 17.98%
同比去年 下跌 30.76%
猜你喜欢
同小区其它房源
-
48030元/㎡
本月挂牌均价
-
3.17%
环比上月
买房加房产交流群,省钱不踩雷
3000+人正在热聊
- 免费咨询
- 专业服务
- 区域解读
- 户型分析


