金茂绿创中心独院独栋办公10412平出售浦项中心融科望京中心
-
38124万
总价
-
精装修
装修
-
10411.86㎡
建筑面积
买房加房产交流群,省钱不踩雷
3000+人正在热聊
-
单价
36615元/平米
-
楼盘名称
保利国际广场
-
区域
朝阳
-
物业费
18元/平米·月
-
类型
纯写字楼
-
等级
甲级
-
挂牌时间
2025-05-31
房源描述(1)
-
核心卖点问经纪人
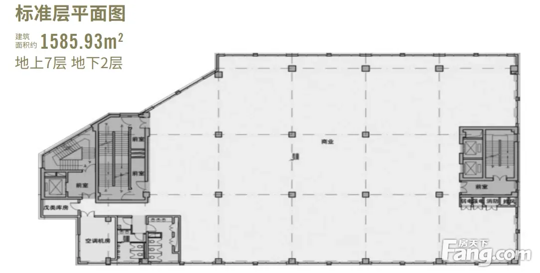
金茂绿创中心独院独栋写字楼10411.86平米精装租售 项目环线:5-6环 独栋办公:13053.31平米(地上建面:10411.86平米,地下建面:2484.84平米) 出售价格:均价34615/平米,总价4.5亿 车位数量:地下产权25个+地上临停8个 面积:B1约735平米、地上 燃气情况:具备燃气条件,有食堂 交易方式:股权交易 出租价格:6元/天/平米 层高:首层5.1米,2-7层4米,B1层4.8米,B2层3.6米 楼层:-2/7 土地性质:C2商业金融;商业办公 土地年限:2012.1-19至 土地面积:2800平米 认证:获得被动式超低能耗绿色建筑设计标识;绿色建筑三星级设计标识;LEED铂金级认证,WELL?铂金级预认证; 特点:格局通透、大面宽、短进深、270度全景玻璃幕,独院独栋 电梯:2部客梯、1部货梯 水费:商业水,9.5元每吨 电费:商业电1.2元每度 制冷:中央空调 房屋现状:室内毛坯房,公共区域精装。 暖气:市政集中供暖,42元每平米每个暖季。 上下水:有 物业费:18元每平米每月 停车位:地下25个产权车位,地上15个临停车位 项目介绍 望京·金茂府位于北京国际大都会之全球门户大望京区域,以全球级精装品质,九年制一站式教育,稀有3米台地主题园林等至臻价值,将人居品质推向新的高度。尤其是由12大绿色科技系统所创造的恒温、恒湿、恒氧的舒居环境,上演了智慧居住的致盛宴。 望京·金茂府总建筑面积约15万㎡,整体由7栋14-17层的高层板楼、1栋商业、1所组成;社区内部景观由香港贝尔高林打造,3米台地主题景观园林;产品拥有4.5米挑高,双大堂精装设计,私密尊崇;1000㎡专属会所进驻,只对社区业主开放。
-
服务介绍问经纪人
本人从事房地产行业多年;你刚好需要,我刚好专业,涉及到北京各区,昌平、海淀、门头沟、朝阳,通州、大兴、亦庄、顺义等都有项目,多年的地产经验、已经跟很多业主成为朋友,长期合作,希望能为您提供专业服务。
-
周边配套问经纪人
周边配套资源: 教育设施:首都师范大学附属本部校区、首都师范大学(分校区)、北京景山(朝阳)、北京市第八十、分校等 商业配套:上品折扣、爱家家居、家乐福、宜家家居、华彩商业中心、NOVO、望京新世界、望京华堂等 医疗 :望京医院、中国中医科望京医院、北亚医院 环境配套:朝来森林公园、望湖公园、大望京公园等 娱乐配套:北苑高尔夫俱乐部、北辰高尔夫俱乐部、来鹏高尔夫俱乐部、佳伟高尔夫等
-
交通出行问经纪人
公路:北五环、京承高速、机场高速、京藏高速、京新高速等 公交:311路 ; 404路 ; 409路 ; 415路 ; 416路 ; 530路 ; 613路 ; 966路 ; 高铁专线6路 ; 专213路 ; 专37路等多条公交 地铁:14号线地铁“来广营”站约580米
周边配套
交通综合评分
查看全部超过北京95.2%的小区
-
地铁公交
10.0
-
驾车出行
10.0
猜你喜欢
同小区其它写字楼
- 免费咨询
- 专业服务
- 区域解读
- 户型分析


