企航商务园独栋商业办公楼2750平至17201平米酒店出售
-
7975万
总价
-
毛坯
装修
-
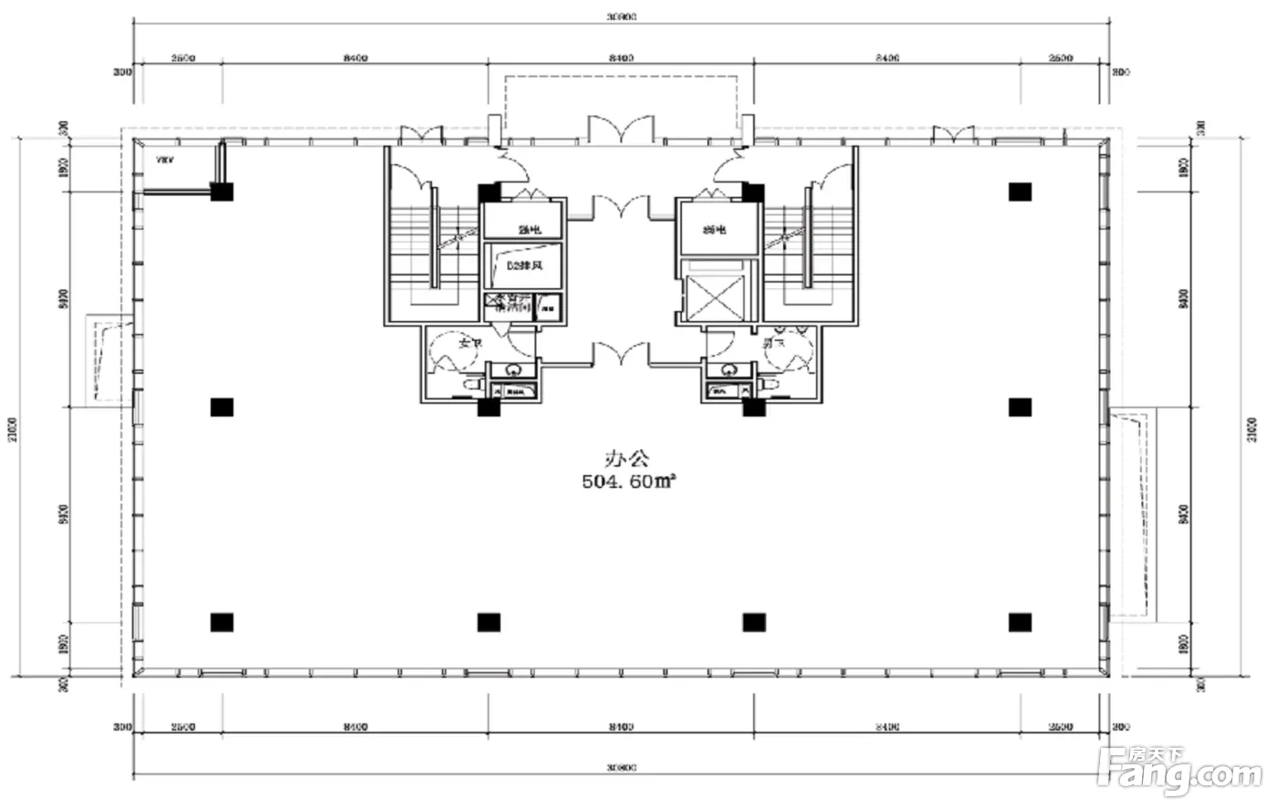
2750㎡
建筑面积
买房加房产交流群,省钱不踩雷
3000+人正在热聊
-
单价
29000元/平米
-
楼盘名称
绿地智汇健康城
-
区域
大兴
-
物业费
18元/平米·月
-
类型
纯写字楼
-
等级
甲级
-
挂牌时间
2025-03-12
房源描述(1)
-
核心卖点问经纪人
企航商务园独栋商业办公楼2750平至17201平米酒店出售 物业类型:商业、办公 占地面积:6.9万平米 总建筑面积:11.1万平米 单栋面积:2750平米、7400平米(办公)、17201平米(酒店) 出售价格:29000元/平米 出租价格:2元/天/平米 装修标准:毛坯 付款方式:全款或按揭 标准层高:首层4.5米,标准层4.2米 总层数:地上3层,地下2层 硬件设施:燃气入楼,有上下水。 绿化率:30% 空调设备:风机盘管加新风系统 保安消防:设火灾报警及自动灭火系统。设保安监控系统 电梯品牌:1部客梯 车位数量:660个 开盘时间:2023年3月 物业位置:大兴区庞各庄镇隆华大街51号院 详细信息 项目总占地面积约6.9万㎡,商业、办公部分总建筑面积约11.1万㎡,其中地上部分6.6万㎡,地下部分4.5万㎡。园区共15栋单体建筑,中心独栋区A1-A10为地上3层独栋办公楼,景观资源佳,环境安静、私密;北部双拼区B1-B4为地上5层双拼式办公楼,视野较好,可俯瞰园区整体景观;西侧沿街商业商务区C1为地上6层商业+办公综合体,开放式布局,充分利用沿街商业价值,突出城市高层商务形象。除C1外园区各栋地下一层为食堂餐厅,地下二层整体连通为车库,共提供660辆地下车位。园区的主要出入口位于地块南侧及西侧,东侧另设有员工出入口,园区环路平时作为步行主要系统,人行流线跟景观相结合。
-
服务介绍问经纪人
本人从事房地产行业多年;你刚好需要,我刚好专业,涉及北京各区,东城、西城、丰台、昌平、海淀、朝阳,通州、大兴、顺义等都有项目,多年的地产经验、已经跟很多业主成为朋友,长期合作,希望能为您提供专业服务。
-
周边配套问经纪人
周边配套 酒店:龙熙瓦德拉玛庄园绅士运动中心、、五星级酒店、温泉水世界、 :大兴、大兴、黄村四中、大兴三中、大兴四中、大兴七中 商场:华堂商场,火神庙商业中心,物美大卖场,乐购TESCO超市等,龙湖时代天街 医院:首都医科大学大兴医院、仁和医院、大兴区医院、大兴中医院、庞各庄医院
-
交通出行问经纪人
交通条件:东距京开高速1千米,北据地铁天宫院站仅5千米; 公交线路:大兴区X108路;兴80路;兴64路;兴65路等
周边配套
交通综合评分
查看全部超过北京0.0%的小区
-
地铁公交
5.0
-
驾车出行
10.0
猜你喜欢
同小区其它写字楼
- 免费咨询
- 专业服务
- 区域解读
- 户型分析


