东城 西草市东街甲34号院 2室1厅
-
386万元
总价
-
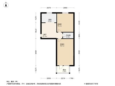
2室1厅1卫
户型
-
48.18㎡
建筑面积
买房加房产交流群,省钱不踩雷
3000+人正在热聊
加入群聊
-
单价
80116元/平米
- 挂牌价格解析
-
楼层
高层/5层
- 咨询楼层
-
套内
暂无数据
- 咨询套内使用面积
-
朝向
南
-
发布
2024-12-27
-
地铁
距7号线珠市口站约280米
-
咨询总首付
首付约130.2万
首付税费及佣金情况 -
深度测评
小区西草市东街甲34号院(东城-天坛)
-
更多
楼户比、楼层高度、交易历史、抵押信息
业主自评
-
西草市出租
加入房天下748天
接电时间:09:00-22:00
这是我娶媳妇的房子,买来10年了,所以装修还是很考究的,家具是我自己根据户型特点自己设计的, 毕竟是自己住的,用的实木家具,算是充分利用了房子的空间,壁橱是内扣的,不占次卧房间,房子里空调、彩电、洗衣机、冰箱、热水器都有,必要的家具也都齐全。
这是我娶媳妇的房子,买来10年了,所以装修还是很考究的,家具是我自己根据户型特点自己设计的, 毕竟是自己住的,用的实木家具,算是充分利用了房子的空间,壁橱是内扣的,不占次卧房间,房子里空调、彩电、洗衣机、冰箱、热水器都有,必要的家具也都齐全。
周边配套
地址:西草市东街甲34号院
交通综合评分
查看全部5.3
“一般”
超过北京24.5%的小区
-
地铁公交
10.0
-
城际交通
4.5
本月均价 63144元/m²
环比上月 下跌 6.34%
同比去年 下跌 21.01%
猜你喜欢
同小区其它房源
户型齐全,主打明厨,双卧朝南,主卧朝南二居
西草市东街甲34号院户型主要有47平-57平的明厨,双卧朝南,主卧朝南的二居 、31平-39平的明厨,主卧朝南的一居 、73平-73平的明厨,客厅朝南的三居 。
*获取完整户型报告,同时会有免费语音讲解服务
-
89686元/㎡
本月挂牌均价
-
0.98%
环比上月
买房加房产交流群,省钱不踩雷
3000+人正在热聊
加入群聊
联系业主
免责声明:房源信息由网站用户提供,其真实性、合法性由信息提供者负责,最终以政府部门登记备案为准。本网站不声明或保证内容之正确性和可靠性,购买该房屋时,请谨慎核查。入学情况仅凭历史经验总结,在此不承诺升学事宜。请您在签订合同之前,切勿支付任何形式的费用,以免上当受骗。

