底价出租229平4室采光好拎包随时就可以入住
-
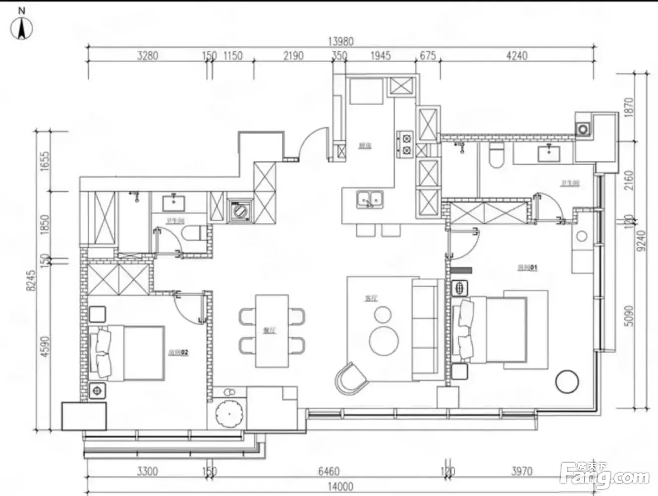
4室2厅1卫
整租
-
228㎡
面积
-
中层/30层
楼层
-
南
朝向
2026-04-08更新
租房不踩坑
3000+人正在热聊
-
看房
随时看房
-
装修
豪华装修
-
入住
暂无
-
咨询经纪人,了解更多房源信息
问一问
费用明细
-
押一付一
付款方式
-
38000
租金(元/月)
-
***
押金
-
***
服务费
- 房租含取暖费吗?
- 房租含物业费吗?
房屋设施
- 床
- 宽带
- 暖气
- 电视
- 空调
- 冰箱
- 洗衣机
- 热水器
- 煤气
- 家具
- 微波炉
- 可做饭
- 卫生间
- 沙发
- 衣柜
- 阳台
- 电梯
- 油烟机
- 智能门锁
- 橱柜
- 燃气灶
- 电磁炉
- 餐桌
- 电话
- 厨具
- 独立卫生间
- 独立阳台
- 露台
- 阁楼
- 游泳池
- 阳光房
房源描述
-
房源亮点问经纪人
善于发现和改变,生活会变得更美好! hey! 又迎来了,一个慧眼独具的客户人,是不是感觉到了我和其他人的不一样,我们喜欢的装修风格应该一样,因为你没有一味的追求偏低的网络价格。 俗话说的好,做一行爱一行,我做中介时间不久,一年多71多单,客户多数都变成了好朋友,甚至有的待我像家人一样,可能他们被我真挚的所感动。 .我可能不是什么房产的传奇,因为我们坚定的站在客户的角度和立场,我们都是孤身在上海打拼,闯进这个被霓虹灯渲染的七彩缤纷的魔都,我们都深深的被这魔都的繁华所吸引,想要立足在这里,现实却不是那么的容易,昂贵的房租就是一道坎,不过舒适的居住环境是很重要的,心仪的居住环境能让我们正能量爆棚,干劲。 我们以给客户找到合适的房子为荣,因为您是我的、级、用户,我的就是让您更体面,不仅让您有面子还让您有里子。 租房不是越越好,也不是越贵越好,更不是越大越好。而是你把需求告诉我,在您条件之内找到一个合适您的房子。 我不能说5千块帮你找到5W块品质的房子,我会让你花的每一分钱都物有所值,说的多不如做的多。 更多请咨询,同时欢迎广大业主咨询、挂牌,我们将竭尽全力为你寻找满意的客户! 现代居所 - 精简而慵懒的生活,舒适! 翠湖天地嘉苑御苑雅苑隽荟都巴卡拉华府天地锦麟天地淮海晶华经纬香港广场雅诗阁时代豪庭复兴珑御老西门公馆海建国里露香园海珀黄浦华府天地睿园上海滩花园外滩九里绿城黄浦湾海琪园金外滩花园外滩公馆融创外滩壹号院融创滨江壹号院,黄浦滩名苑融创外滩壹号公馆绿地黄浦滨江汇景天地海悦花园伯爵居绿洲仕格维汇景苑步高苑嘉御庭海珀日晖海珀旭辉保利西岸中信君庭尚海湾百汇园云锦东方晶苑宛平88新华路壹号徐汇中凯城市之光芝大厦鸿艺豪苑嘉丽苑上海天玺御品大厦嘉里华庭汇贤居王子晶品尚泰里华山丽苑华山夏都苑淮海名邸古北壹号九龙仓静安壹号嘉天汇静安豪景君御豪庭远中风华园苏河融景金融街静鼎安邦苏河湾公馆农房熙藏
-
小区配套问经纪人
小区环境优美,适宜居住,人文素质高,物业管理完善,小区治安好
-
服务介绍问经纪人
翠湖天地嘉苑御苑雅苑隽荟都巴卡拉华府天地锦麟天地淮海晶华经纬香港广场雅诗阁时代豪庭复兴珑御老西门公馆海建国里露香园海珀黄浦华府天地睿园上海滩花园外滩九里绿城黄浦湾海琪园金外滩花园外滩公馆融创外滩壹号院
-
周边配套问经纪人
小区居民素质高,配套设施齐全,地理位置好,交通便利。
-
交通出行问经纪人
小区周围交通发达,出行便利,生活十分便捷。
周边配套
- 免费咨询
- 专业服务
- 区域解读
- 户型分析


