TOP芯联 企业独栋 东明路直通大楼,国企开发品质有保障
-
3元/平米·天
租金
-
简装修
装修
-
3000㎡
建筑面积
-
楼盘名称
云顶国际商业广场
-
区域
浦东
-
物业费
28元/平米·月
-
类型
纯写字楼
-
等级
暂无
-
挂牌时间
2025-11-12
-
支付方式
押三付一
-
入驻时间
2025-05-15
费用明细
-
押三付一
付款方式
-
3
租金(元/平米·天)
-
***
押金
-
***
服务费
- 房租含取暖费吗?
- 房租含物业费吗?
房源描述
-
房源亮点问经纪人
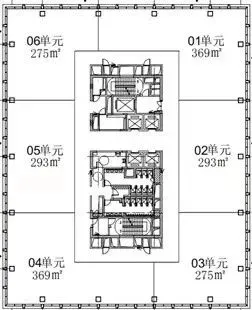
TOP芯联 国有企业开发 项目介绍-浦东世博新杨思 双上盖 现预招商地址:浦东新区成山路 / 邹平路口 :轨道交通6、13号线双上盖(东明路站) 面积:4栋小独栋A-D栋 整栋 3035㎡,单层606㎡3栋塔楼 整栋1.6-2.1万㎡,单层1872-2223㎡, 面积275平起租可分割 租金报价:(可谈)小独栋 6.3 元/㎡/天塔楼 5.2-6.2 元/㎡/天 免租期: 3个月起 物业费: 28元/㎡/月(不含空调能耗) 得房率:73-84%:4.5米(净高3.1米) 空调:VRV系统 24空调,加班可独立控制,PM2.5过滤,高压微雾加湿 付款方式:押三付三 交付标准:标准交付,金属吊顶,15cm架空地板,墙面乳胶漆 停车费:临时停车费10元/,月租停车费1200元/月
-
服务介绍问经纪人
专注服务企业客户寻求物业买卖,租赁业务。 公司标准化服务,给您带来专业,靠谱,信任的合作体验。 其他区域:御桥,周浦,康桥,三林,金桥,张江,陆家嘴,浦江等 不收中介费131#6603#4171
-
周边配套问经纪人
配套:项目自有Tims咖啡、捞王、麦当劳、巴黎贝甜、一兆韦德健身、美食广场等业态满足需求,世博洲际酒店、亚朵酒店、全季酒店5,周边一公里范围内有亿丰时代广场,漫乐城、三林体育中心、家乐福等配套。 商圈:位于“金色中环发展带”,世博商务区、前滩商务区,打造新杨思生活消费新高地,成为浦东南中环经济带上的活动区,商务能量辐射上海全域。 户型简单介绍:全落地景观窗,采光好,窗户可开,公园绿化,世界五大事务所设计,户型方正,三层中空low-e玻璃幕墙,标准交付,净高三米一,配公共茶水间,下附照片。 开发商:浦东建设股份有限公司(A股代码:600284)-是浦发集
-
交通出行问经纪人
:轨道交通6、13号线双上盖(东明路站) ,直通大楼地下通道 公交:219路、338路、572路、572区间、782路、973路、隧道九线、隧道一线、815路、604路、583路、隧道七线等等
浦东世博
建成2011年
周边配套
- 免费咨询
- 专业服务
- 区域解读
- 户型分析


