4200
元/月
押一付三
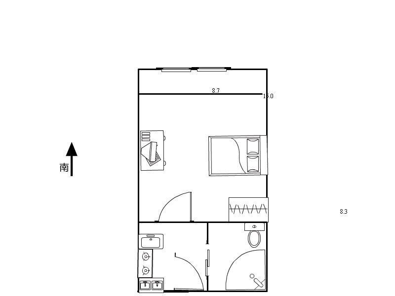
新泾七村 1室1卫1厅 35平简装修 3400元/月
-
1室1厅1卫
整租
-
35㎡
面积
-
底层/6层
楼层
-
南
朝向
2025-08-10更新
租房不踩坑
3000+人正在热聊
加入群聊
-
看房
暂无
-
装修
简装修
-
入住
暂无
-
咨询经纪人,了解更多房源信息
问一问
郑重提示:请您在签订合同之前,切勿支付任何形式的费用,以免上当受骗。
费用明细
-
押一付三
付款方式
-
4200
租金(元/月)
-
***
押金
-
***
服务费
- 房租含取暖费吗?
- 房租含物业费吗?
房屋设施
- 床
- 宽带
- 暖气
- 电视
- 空调
- 冰箱
- 洗衣机
- 热水器
- 煤气
- 家具
- 微波炉
- 可做饭
- 卫生间
- 沙发
- 衣柜
- 阳台
- 电梯
- 油烟机
- 智能门锁
- 橱柜
- 燃气灶
- 电磁炉
- 餐桌
- 电话
- 厨具
- 独立卫生间
- 独立阳台
- 露台
- 阁楼
- 游泳池
- 阳光房
房源描述
-
房源亮点问经纪人
您好!感谢光临我的店铺,我将为您提供、周全、可靠、安心的1.看房,只需您的一个电话2.价格,我是您给力的手3.选房,我是您的员4.保证,我们公司提供的合同是完整的,我们的售后让您省心的房源介绍1.朝向:南,通风采光都好,生活居住无比舒适2.楼层3.房东诚心出租,也许观望许久的您在已厌倦看房的时候,突然发现此房后将是另一番想法 选择家,选择。我始终坚信:一切为了您的委托/为您找到一个温馨的家!我用心去,您用心去感受。
-
小区配套问经纪人
小区环境优雅,配套成熟,交通便利,居住舒适.
-
服务介绍问经纪人
本人从事房地产多年,公司有大量好房源,欢迎进入我的店铺查看,欢迎随时电话咨询,相信我的专业,为您置业安家保驾护航。
周边配套
地址:天山西路450弄1-78号、金钟路333弄1-95号
- 免费咨询
- 专业服务
- 区域解读
- 户型分析
免责声明:房源信息由网站用户提供,其真实性、合法性由信息提供者负责,最终以政府部门登记备案为准。本网站内容凡涉及面积单位均为建筑面积,本网站不声明或保证内容之正确性和可靠性,租赁该房屋时,请谨慎核查。


