5500
元/月
押二付一
11号线棣园站 海珠湾平层两人居住宅 家具齐 拎包入住
-
2室2厅2卫
整租
-
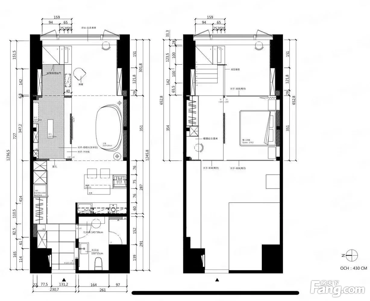
95.03㎡
面积
-
低层/46层
楼层
-
东北
朝向
2025-05-19更新
租房不踩坑
3000+人正在热聊
加入群聊
-
看房
暂无
-
装修
精装修
-
入住
暂无
-
咨询经纪人,了解更多房源信息
问一问
郑重提示:请您在签订合同之前,切勿支付任何形式的费用,以免上当受骗。
费用明细
-
押二付一
付款方式
-
5500
租金(元/月)
-
***
押金
-
***
服务费
- 房租含取暖费吗?
- 房租含物业费吗?
房屋设施
- 床
- 宽带
- 暖气
- 电视
- 空调
- 冰箱
- 洗衣机
- 热水器
- 煤气
- 家具
- 微波炉
- 可做饭
- 卫生间
- 沙发
- 衣柜
- 阳台
- 电梯
- 油烟机
- 智能门锁
- 橱柜
- 燃气灶
- 电磁炉
- 餐桌
- 电话
- 厨具
- 独立卫生间
- 独立阳台
- 露台
- 阁楼
- 游泳池
- 阳光房
房源描述
-
房源亮点问经纪人
租房买房物业帮忙,我们是越秀服务小区的物业置业顾问 生活楼下:附近广纸天地荟、肉菜市场,全家、711便利店等, 近乐峰广场,太古仓、BIG海珠湾艺术园区、快递外卖到家,吃吃喝喝都很方便! 地下有三层停车场,地面上可充电的电瓶车停车场。24安保,越秀物业(国企旗下品牌)安心!
-
小区配套问经纪人
小区环境优美,适宜,人文素质高,物业管理完善,小区治安好
-
服务介绍问经纪人
本人做房产多年,一直本着专业的房产知识,为您服务,我会在短的时间内帮您买好满意的房子,不让您错失任何好房子,更不让您每天为买房的事烦心,欢迎随时拨打我电话。
-
周边配套问经纪人
小区地理位置好,配套设施齐全,交通便利,居民素质高。
-
交通出行问经纪人
产权干净,税费清晰,欢迎来电咨询该房屋详情,静候您的来电!
周边配套
地址:广州市海珠区星锦街(广纸路 40 号)
- 免费咨询
- 专业服务
- 区域解读
- 户型分析
免责声明:房源信息由网站用户提供,其真实性、合法性由信息提供者负责,最终以政府部门登记备案为准。本网站内容凡涉及面积单位均为建筑面积,本网站不声明或保证内容之正确性和可靠性,租赁该房屋时,请谨慎核查。

