南城1000平独栋写字楼!豪装带花园带大外阳台!可独立冠名
-
50000元/月
租金
-
精装修
装修
-
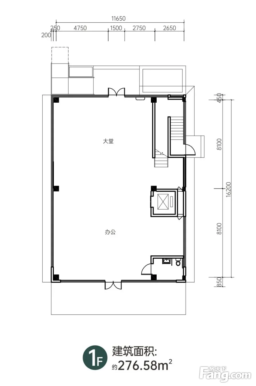
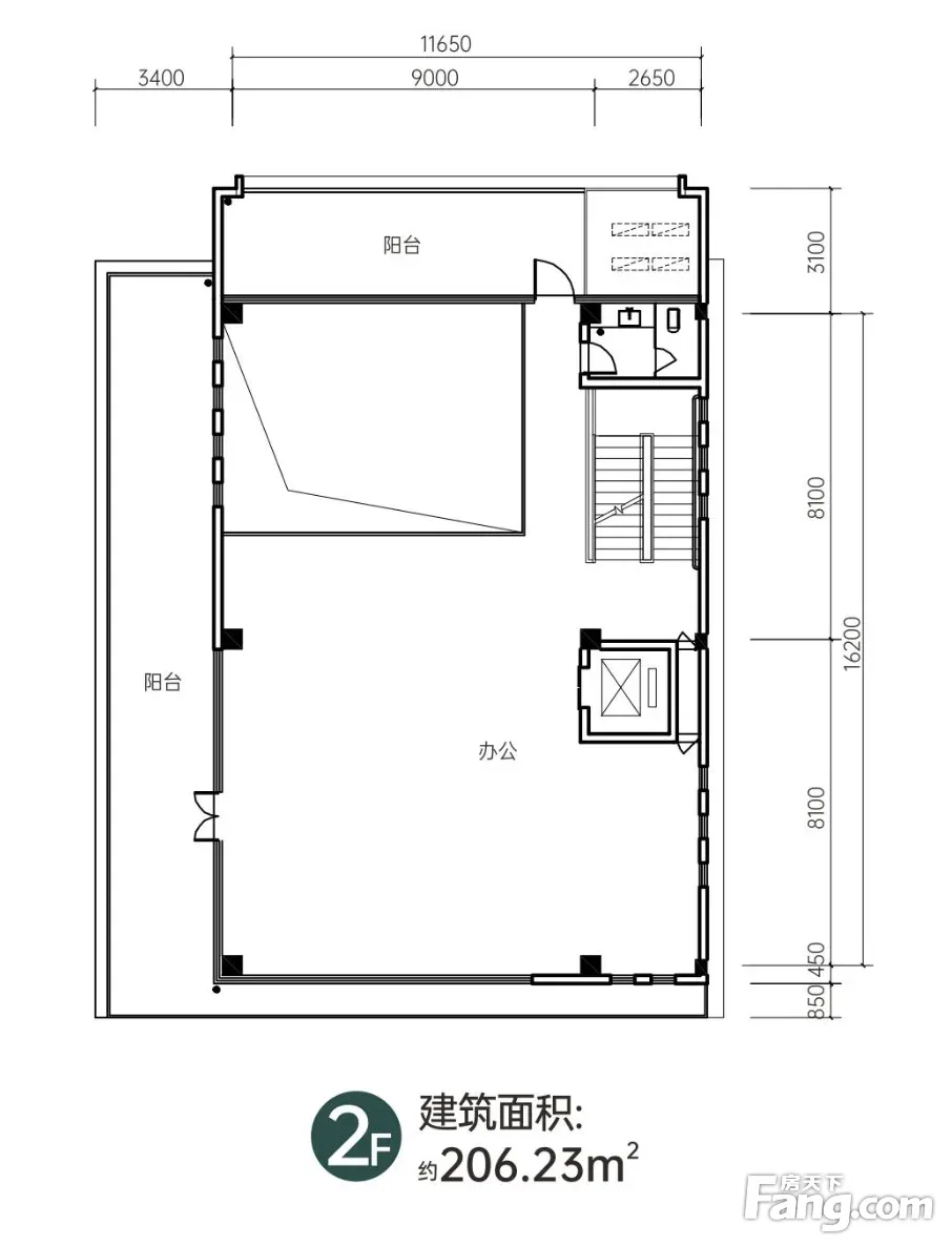
1000㎡
建筑面积
-
楼盘名称
联科·创投中心
-
区域
厚街
-
物业费
6元/平米·月
-
类型
纯写字楼
-
等级
暂无
-
挂牌时间
2025-11-15
-
支付方式
押二付一
-
入驻时间
2024-01-19
费用明细
-
押二付一
付款方式
-
50000
租金(元/月)
-
***
押金
-
***
服务费
- 房租含取暖费吗?
- 房租含物业费吗?
房源描述
-
房源亮点问经纪人
南城约1000平精装独栋出租 独门独户,独立冠名,独立门牌 独立大堂,独立电梯,总裁VIP车位 赠送阳光露台,公园办公生态 本公司专注写字楼多年,如这套不合适,可以电话咨询我其他,各种类型,各种大小的写字楼都有
-
服务介绍问经纪人
东联地产-专业服务 1.全程免费看房,为您省时、省力! 2.专业团队为您匹配房源,让您省心、放心! 3.强大的源系统让您360度全面了解项目、市场! 4.带看、签约、验房、交接全程参与,用无微不至的
-
周边配套问经纪人
公司主营南城、东城、万江周边写字楼一二手买卖与租凭,包含华凯广场,第壹国际,天安数码城,台商大厦,浙商大厦,南城大厦,财富广场,海德广场,鸿禧中心,万达广场,万科大厦,万科中天大厦,汇成大厦,中盛大厦,腾龙大厦,国际商会大厦,中环财富广场,胜和广场,总部基地ucc,碧桂园中心
-
交通出行问经纪人
1、业主诚心出租,低于市场价,按业主的话说,少租一点,能把客户留住 2、周边发展成熟、商业配套完善,银行、餐饮、购物、休闲都很很方便 3、周边一手住宅新盘售价都已经破4万,现在入手此价位楼盘未来可期
南城厚街
建成2017年
周边配套
地址:水濂山大道环莞快速出口
- 免费咨询
- 专业服务
- 区域解读
- 户型分析
免责声明:房源信息由网站用户提供,其真实性、合法性由信息提供者负责,最终以政府部门登记备案为准。本网站内容凡涉及面积单位均为建筑面积,本网站不声明或保证内容之正确性和可靠性,租赁该房屋时,请谨慎核查。


