解放碑国贸中心 动静分离6+36人员工区 空调24自控
-
1.5元/平米·天
租金
-
精装修
装修
-
308㎡
建筑面积
租房不踩坑
3000+人正在热聊
加入群聊
-
楼盘名称
重庆国际贸易中心
-
区域
渝中
-
物业费
12元/平米·月
-
类型
纯写字楼
-
等级
暂无
-
挂牌时间
2025-03-20
-
支付方式
押一付三
-
入驻时间
暂无
费用明细
-
押一付三
付款方式
-
1.5
租金(元/平米·天)
-
***
押金
-
***
服务费
- 房租含取暖费吗?
- 房租含物业费吗?
房源描述
-
房源亮点问经纪人
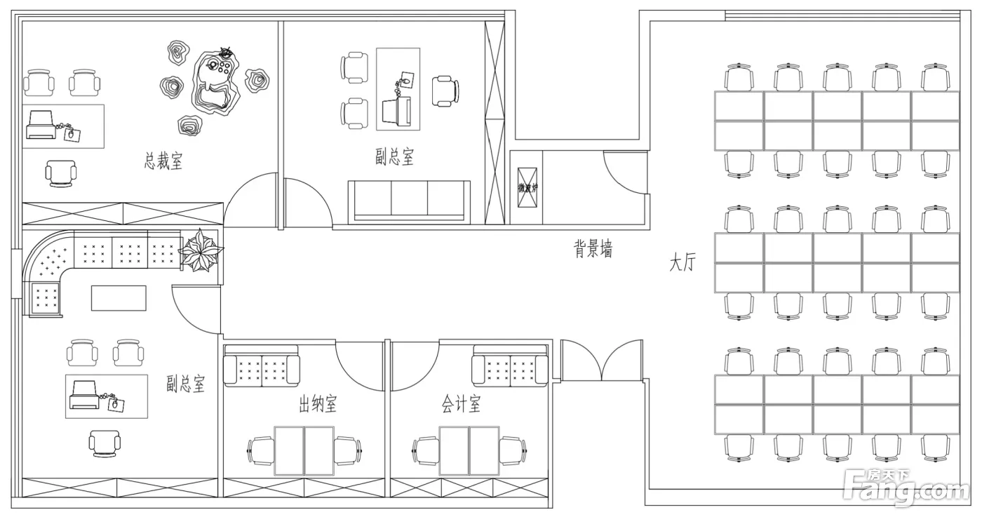
【房源介绍】 1:房源名称:国际贸易中心 2:房源面积:308平米 3:房源价格:58元/平/月 4:物业费:12元/平/月 5:房源介绍: 进门前台形象墙,共计6个办公室,大厅可容纳36人左右,双面采光,精装全新家具 空调一年365天天都有 6:租赁方式:押二付叁 7:看房时间:随时(实地看房效果更好) 8:交通情况:临江门、小什子、较场口轻轨丫,多路公交通过! 9:周边配套:银行、餐饮、酒店、便利店等 公司介绍:我公司专做重庆写字楼租赁专业,拥有重庆市每个对外出租开发商合作资源,小业主至少78%房源,100-5000平米均有房源
-
服务介绍问经纪人
本人从事写字桉行业8年,熟悉重庆各区或楼盘推荐,如有需要可直接拨打电话,谢谢浏览,祝你生活渝快
-
周边配套问经纪人
位置:小区地理位置佳,绿化率高,居民素质高 配套:有健身器材,小型篮球场,可供小区居民使用 车位:停车位充足,建有地上停车场和地下车库 保安:小区内24保安巡逻
-
交通出行问经纪人
交通:楼盘处于轨道6号线小什字站4号出口1号线较场口站,周围上百条公交,无缝链接江北、巴南、渝中、渝北,江北机场。
渝中解放碑
建成2005年
建筑类型高层
周边配套
地址:青年路38号
- 免费咨询
- 专业服务
- 区域解读
- 户型分析
免责声明:房源信息由网站用户提供,其真实性、合法性由信息提供者负责,最终以政府部门登记备案为准。本网站内容凡涉及面积单位均为建筑面积,本网站不声明或保证内容之正确性和可靠性,租赁该房屋时,请谨慎核查。

