北区地标!FFC财富中心!全新装修现房200一1600平可选
-
50元/平米·月
租金
-
精装修
装修
-
401㎡
建筑面积
租房不踩坑
3000+人正在热聊
-
楼盘名称
重庆财富金融中心FFC
-
区域
两江新区
-
物业费
22元/平米·月
-
类型
纯写字楼
-
等级
暂无
-
挂牌时间
2025-12-25
-
支付方式
押一付三
-
入驻时间
2025-12-25
费用明细
-
押一付三
付款方式
-
50
租金(元/平米·月)
-
***
押金
-
***
服务费
- 房租含取暖费吗?
- 房租含物业费吗?
房源描述
-
房源亮点问经纪人
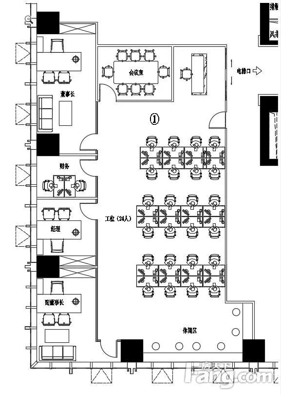
本人专业从事写字楼租售,更多房源,请点击我的店铺... 【楼盘】:FFC财富中心 【面积】:401㎡(另有该片区大小面积出租,价格美丽) 【租金】:特价50 【装修】:电梯口,精装修带全套办公家具 【格局】:4个办公室+1个会议室+超大办公区域 【停车】:4元/,15元/12,20元/24 【配套】:多条地铁、数条公交线路一站式服务 【看房】:有钥匙,24*随时可以看房 【快捷看房】 -如果您工作繁忙 没有时间看房 可电话联系提前预约看房 【专业】 -您告知需求 我帮您筛选房源 【高效】 -为您发送房子真实图片 视频 精准匹配合适房源 【服务信念】 -感知责任、优 质回馈、合作共赢 个人介绍 本人从事这行已有8年时间,服务客户上千次,专业从事重庆主城渝中区、江北区、南岸区、九龙坡区、渝北区两江新区等各类写字楼资源,如果您有任何疑问,欢迎您电话交流。
-
服务介绍问经纪人
个人介绍: 我们的目的不是只为了成交,我们的服务理念是一次选择,一生服务“,帮助每一位客户和业主解决选址和出房因扰 专业从事渝中区、江北区、南岸区、渝北区、九龙坡、两江新区、沙坪坝等各区写字楼租售
-
周边配套问经纪人
硬件 尊贵办公: 本座外观时尚,大厅敞亮,尊享多部高速电梯! 成熟商圈 配套完善: 本座位于商圈繁华地段,周围配套各大银行,酒店,百货商场,超市! 交通便利 畅通无阻: 本座轨道交通线路和多个公交车站,公交线路四通八达,轻轨保您准时无忧!
-
交通出行问经纪人
优势:正对电梯口 户型方正大气 端户视野采光极好 交通便利:距离地铁环线洪湖东路站500米 附近公交路线10余条
两江新区加州新牌坊
建成2017年
周边配套
- 免费咨询
- 专业服务
- 区域解读
- 户型分析

