2800
元/月
押一付三
两江新区汽博中心金鹏·春晓蘭庭 3室2厅 93㎡ 2800元
-
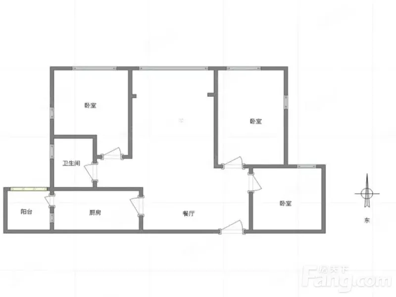
3室2厅1卫
整租
-
93㎡
面积
-
高层/17层
楼层
-
南北
朝向
2025-12-11更新
租房不踩坑
3000+人正在热聊
加入群聊
-
看房
-
-
装修
精装修
-
入住
随时入住
-
咨询经纪人,了解更多房源信息
问一问
郑重提示:请您在签订合同之前,切勿支付任何形式的费用,以免上当受骗。
费用明细
-
押一付三
付款方式
-
2800
租金(元/月)
-
***
押金
-
***
服务费
- 房租含取暖费吗?
- 房租含物业费吗?
房屋设施
- 床
- 宽带
- 暖气
- 电视
- 空调
- 冰箱
- 洗衣机
- 热水器
- 煤气
- 家具
- 微波炉
- 可做饭
- 卫生间
- 沙发
- 衣柜
- 阳台
- 电梯
- 油烟机
- 智能门锁
- 橱柜
- 燃气灶
- 电磁炉
- 餐桌
- 电话
- 厨具
- 独立卫生间
- 独立阳台
- 露台
- 阁楼
- 游泳池
- 阳光房
业主自评
-
card8886012133
加入房天下2752天
接电时间:09:00-23:00
出租要求: 一家人,禁止养宠物
【户型格局】 3室2厅1卫布局,建筑面积93平方米,南北通透设计保证室内空气流通,适合家庭居住。【房源亮点】 首次出租房源,保持全新状态,精装修交付,室内设施完好,可直接拎包入住。【交通位置】 位于宝圣湖街道宝石路旁,周边生活配套成熟,公交线路便利,满足日常出行需求。【租赁要求】 仅限家庭整租,不接受合租,禁止饲养宠物,租金押一付三,可随时安排看房入住。
出租要求: 一家人,禁止养宠物
【户型格局】 3室2厅1卫布局,建筑面积93平方米,南北通透设计保证室内空气流通,适合家庭居住。【房源亮点】 首次出租房源,保持全新状态,精装修交付,室内设施完好,可直接拎包入住。【交通位置】 位于宝圣湖街道宝石路旁,周边生活配套成熟,公交线路便利,满足日常出行需求。【租赁要求】 仅限家庭整租,不接受合租,禁止饲养宠物,租金押一付三,可随时安排看房入住。
周边配套
地址:宝圣湖街道宝石路旁
联系业主
免责声明:房源信息由网站用户提供,其真实性、合法性由信息提供者负责,最终以政府部门登记备案为准。本网站内容凡涉及面积单位均为建筑面积,本网站不声明或保证内容之正确性和可靠性,租赁该房屋时,请谨慎核查。

