18000
元/月
押一付三
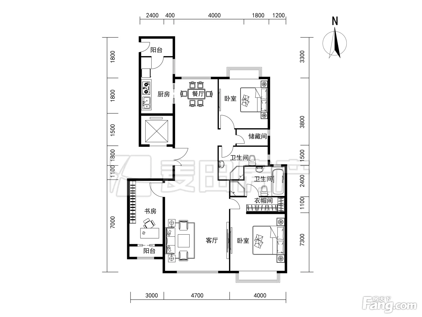
3室2厅世茂奥临花园
-
3室2厅2卫
整租
-
198㎡
面积
-
高层/18层
楼层
-
南北
朝向
2026-02-01更新
租房不踩坑
3000+人正在热聊
加入群聊
-
看房
暂无
-
装修
精装修
-
入住
2026-01-27 08:00:00
-
咨询经纪人,了解更多房源信息
问一问
郑重提示:请您在签订合同之前,切勿支付任何形式的费用,以免上当受骗。
费用明细
-
押一付三
付款方式
-
18000
租金(元/月)
-
***
押金
-
***
服务费
- 房租含取暖费吗?
- 房租含物业费吗?
房源描述
-
房源亮点问经纪人
相信为您推荐的这套房子您一定会满意,赶快行动吧,先到先得! 房屋年代∶2006,面积∶198.0平方米,朝向∶南北 1. 小区配备高端物业管理,让你享受宾至如归的服务; 2. 小区人文素质高,是您的居家的绝佳选择; 3. 小区居住安静舒适,让您拥有高品质的生活环境; 4. 小区绿化率高,绿树成荫鸟语花香让您随时呼吸到新鲜空气。
-
小区配套问经纪人
世茂奥临花园位于国家森林公园北端与浩瀚的13000亩国家森林公园仅一路之隔世茂奥临花园占地10万多平米建筑面积约30万平米、由6幢俊秀挺拔高低错落的板式豪宅围合而成社区内绿化率高达55.42拥有3000余棵20年生的原生树还特聘了英国著名的园林设计公司阿特金斯打造了4万平米的地中海式风情园林6大异域主题园林相互联结对应每一栋公寓中间围绕着1万平米的潋滟湖水成就了世茂奥临花园由内及外四面八方处处是景的生态奇观由6幢板式豪宅组成1190户1号楼为5个单元1526层2号楼为2个单元60套左右的房子15层3号楼4个单元200套左右的房子27层4号楼3个
周边配套
地址:北京市朝阳区清林路一号
- 免费咨询
- 专业服务
- 区域解读
- 户型分析
免责声明:房源信息由网站用户提供,其真实性、合法性由信息提供者负责,最终以政府部门登记备案为准。本网站内容凡涉及面积单位均为建筑面积,本网站不声明或保证内容之正确性和可靠性,租赁该房屋时,请谨慎核查。

