14500
元/月
押一付三
南北通透 倚林佳园 3室2厅 精装修
-
3室2厅2卫
整租
-
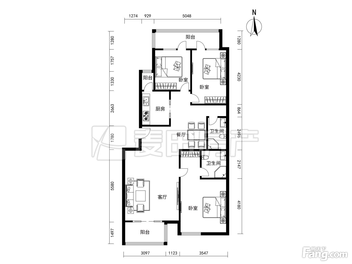
143㎡
面积
-
中层/5层
楼层
-
南北
朝向
2026-01-20更新
租房不踩坑
3000+人正在热聊
加入群聊
-
看房
暂无
-
装修
精装修
-
入住
2026-01-26 00:00:00
-
咨询经纪人,了解更多房源信息
问一问
郑重提示:请您在签订合同之前,切勿支付任何形式的费用,以免上当受骗。
费用明细
-
押一付三
付款方式
-
14500
租金(元/月)
-
***
押金
-
***
服务费
- 房租含取暖费吗?
- 房租含物业费吗?
房源描述
-
房源亮点问经纪人
相信为您推荐的这套房子您一定会满意,赶快行动吧,先到先得! 房屋面积∶143平方米,朝向∶南北通透 1. 小区配备良好物业管理,让你享受宾至如归的服务; 2. 小区人文素质高,是您的居家的品质选择; 3. 小区环境安静舒适,让您拥有高品质的生活环境; 4. 小区绿化高,绿树成荫鸟语花香让您随时呼吸到新鲜空气。
-
小区配套问经纪人
倚林佳园位于奥运规划核心区:朝阳区洼里乡林萃路,在北四环与北五环之间。同时,与13000亩的国家森林公园仅隔25米,位置紧邻奥运规划的西侧,距奥运村不足200米。项目距离八达岭高速公路为直线距离600米,距大屯路1.2公里,距北五环600米。 社区位置极其优越,为闹中取静之地,南面紧接亚运村,西面紧接海淀各大高校,商业教育购物各种配套一应俱全。 项目建筑面积约16万平米,在建筑形式上为低密度的四至五层跃层,每单元仅分为上下两户,每户单独出入,小区别墅设计几乎为零公摊,面积上的实惠加之户型设计的人性化使得居住品质大幅度
周边配套
地址:取洼里乡倚林佳园
- 免费咨询
- 专业服务
- 区域解读
- 户型分析
免责声明:房源信息由网站用户提供,其真实性、合法性由信息提供者负责,最终以政府部门登记备案为准。本网站内容凡涉及面积单位均为建筑面积,本网站不声明或保证内容之正确性和可靠性,租赁该房屋时,请谨慎核查。


