中关村生命科學园生物医药产业园1400平可医疗生产生物医药
-
2.5元/平米·天
租金
-
毛坯
装修
-
1400㎡
建筑面积
租房不踩坑
3000+人正在热聊
-
楼盘名称
中关村生命科学园
-
区域
昌平
-
物业费
15元/平米·月
-
类型
纯写字楼
-
等级
暂无
-
挂牌时间
2026-01-19
-
支付方式
押三付三
-
入驻时间
暂无
费用明细
-
押三付三
付款方式
-
2.5
租金(元/平米·天)
-
***
押金
-
***
服务费
- 房租含取暖费吗?
- 房租含物业费吗?
房源描述
-
房源亮点问经纪人
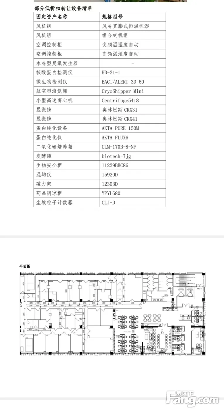
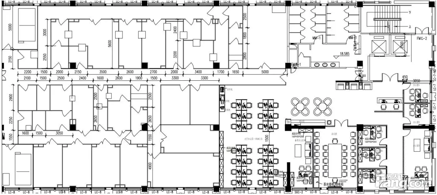
精装生物医药室招商 室介绍 位置在于北京市昌平区回龙观生物医药产业园内CAR-T室,洁净级别C级,二级室,面积1400平米(含30%公摊),其中洁净室12间,室区域面积860平米,区域、会议室及卫生间面积540平米。 相关说明 1、有独立的洁净空调 2、已做环评(环评可变更公司),废水、废气均有处理设备 3、配有二氧化碳、氧气、压缩空气管路 4、有大批八九成新设备和全套高品质家具可以,部分高价值设备可低转让。 园区简介生命科學园,与生命科學园同属未来科學城管委会,资源共享。处于北京自贸试验区科技创新,享受自贸区优惠政策。园区为近年新投建成,定位生物医药产业园,对污水处理系统、废气净化处理系统和洁净空调系统做了整体规划预留,充分考虑生物医药研发企业的需求。排风:入驻企业需独立安装排风管道,和废气处理装置,过滤合格后排入大气。排污:入驻企业需独立安装污水处理装置,过滤合格后排往入大楼污水处理管道。电源:周边真双路供电项目,基础供电容量2000KVA,后备供电容量2000KVA,共计4000KVA。物业配套:2时空调,地下车库,园区封闭式管理,2时安保。租金:4.5/平米/天,物业费10元/平米/月,制冷和供暖费90元/平米/年
-
服务介绍问经纪人
本人做房产多年,一直本着专业的房产知识,为您服务,我会在短的时间内帮您买好满意的房子,不让您错失任何好房子,更不让您每天为买房的事烦心,欢迎随时拨打我电话。
-
周边配套问经纪人
小区居民素质高,配套设施齐全,地理位置好,交通便利。
-
交通出行问经纪人
产权干净,税费清晰,欢迎来电咨询该房屋详情,静候您的来电!
昌平沙河
建成2009年
周边配套
- 免费咨询
- 专业服务
- 区域解读
- 户型分析


