15000
元/月
押一付三
3室2厅亦庄金茂悦北区
-
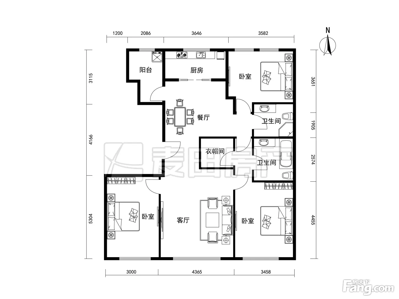
3室2厅2卫
整租
-
162.46㎡
面积
-
低层/11层
楼层
-
南北
朝向
2026-01-17更新
租房不踩坑
3000+人正在热聊
加入群聊
-
看房
暂无
-
装修
精装修
-
入住
2026-01-16 00:00:00
-
咨询经纪人,了解更多房源信息
问一问
郑重提示:请您在签订合同之前,切勿支付任何形式的费用,以免上当受骗。
费用明细
-
押一付三
付款方式
-
15000
租金(元/月)
-
***
押金
-
***
服务费
- 房租含取暖费吗?
- 房租含物业费吗?
房源描述
-
房源亮点问经纪人
相信为您推荐的这套房子您一定会满意,赶快行动吧,先到先得! 房屋年代∶2017,面积∶162.46平方米,朝向∶南北 1. 小区配备高端物业管理,让你享受宾至如归的服务; 2. 小区人文素质高,是您的居家的绝佳选择; 3. 小区居住安静舒适,让您拥有高品质的生活环境; 4. 小区绿化率高,绿树成荫鸟语花香让您随时呼吸到新鲜空气。
-
小区配套问经纪人
亦庄金茂悦,传承“府”系产品的科技系统,超越“悦”系产品的带装修,打造北京绿色宜居住宅,为城市中坚力量提供全家庭全改善健康宜居典范,其带来的“绿金”产品,打造了绿色、科技、智慧住宅的样板,也带动亦庄区域各楼盘都有了“新风”配置,为区域住宅的整体品质提高起到了不小的作用。 以七大科技系统打造恒温恒湿恒氧的健康住宅,将高舒适、降低生活能耗、绿色健康的理念贯穿建筑体系,为居住者创造纯净的阳光、空气、水,全置换式独立新风系统,家人全天候畅享润泽呼吸;同层排水系统与双镀银LOW-E玻璃,时刻维持低噪静谧,
周边配套
地址:亦庄·南海子公园东南1000米
- 免费咨询
- 专业服务
- 区域解读
- 户型分析
免责声明:房源信息由网站用户提供,其真实性、合法性由信息提供者负责,最终以政府部门登记备案为准。本网站内容凡涉及面积单位均为建筑面积,本网站不声明或保证内容之正确性和可靠性,租赁该房屋时,请谨慎核查。

