东四环十里堡时尚万科300平精装带家具4功能间加46人工位区
-
4元/平米·天
租金
-
精装修
装修
-
300㎡
建筑面积
租房不踩坑
3000+人正在热聊
加入群聊
-
楼盘名称
时尚万科中心
-
区域
朝阳
-
物业费
暂无
-
类型
纯写字楼
-
等级
暂无
-
挂牌时间
2026-01-13
-
支付方式
押三付一
-
入驻时间
2026-01-13
费用明细
-
押三付一
付款方式
-
4
租金(元/平米·天)
-
***
押金
-
***
服务费
- 房租含取暖费吗?
- 房租含物业费吗?
房源描述
-
房源亮点问经纪人
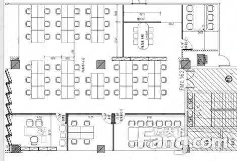
1、项 目:时尚万科 2、面 积:300平 3、朝 向:东向 4、免租期:根据签约条件和签约年限可谈【3个月-4个月】 6、付款方式:押三付一 房屋现况:大气的前台、精装修,置办个家具、入驻即可办公,省去装修费用和时间,精装修,【老板间、经理室、会议室、财务室、接待室】一应俱全,省去您二次装修的费用、省时、省力。如格局不合适,该大厦为纯写字楼框架式结构,可自由设计按需求随意拆隔、装修,该房产权清晰,无纠纷,纯办公写字楼房本,可注册。房子现在空置,可随时看房。
-
服务介绍问经纪人
1.为您匹配您需求的优质写字楼房源,免费陪同您实地看房,谈判,签约等。 2.主做国贸CBD商圈,建国门、朝阳门商圈,三元桥、燕莎商圈,东城等商圈。掌握商业地产销控和2手房写字楼买卖及租赁房源
-
周边配套问经纪人
写字楼配套齐全: 银行:招商银行、建设银行、农业银行、工商银行、北京银行、光大银行、民生银行、交通银行、深圳发展银行、大连银行、广发银行等 餐饮:一品三笑、真功夫、顺口溜、汉拿山、东北饺子、柴门食府,木桶三国等
-
交通出行问经纪人
项目位于国贸商圈,交通便利双地铁;地铁6号线十里堡站,多条公交站点汇集,员工上下班很方便。
朝阳东八里庄
建成2020年
周边配套
地址:朝阳北路152号
- 免费咨询
- 专业服务
- 区域解读
- 户型分析
免责声明:房源信息由网站用户提供,其真实性、合法性由信息提供者负责,最终以政府部门登记备案为准。本网站内容凡涉及面积单位均为建筑面积,本网站不声明或保证内容之正确性和可靠性,租赁该房屋时,请谨慎核查。


