13200
元/月
押一付三
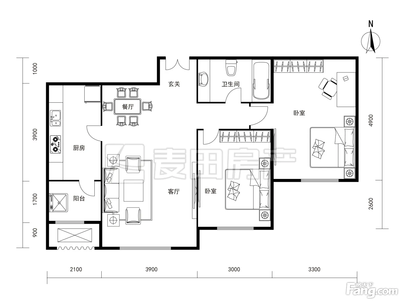
2室2厅太阳星城火星园
-
2室2厅1卫
整租
-
102㎡
面积
-
高层/26层
楼层
-
南
朝向
2026-01-13更新
租房不踩坑
3000+人正在热聊
加入群聊
-
看房
暂无
-
装修
精装修
-
入住
2025-12-16 00:00:00
-
咨询经纪人,了解更多房源信息
问一问
郑重提示:请您在签订合同之前,切勿支付任何形式的费用,以免上当受骗。
费用明细
-
押一付三
付款方式
-
13200
租金(元/月)
-
***
押金
-
***
服务费
- 房租含取暖费吗?
- 房租含物业费吗?
房源描述
-
房源亮点问经纪人
相信为您推荐的这套房子您一定会满意,赶快行动吧,先到先得! 房屋年代∶2010,面积∶102.0平方米,朝向∶南 1. 小区配备高端物业管理,让你享受宾至如归的服务; 2. 小区人文素质高,是您的居家的绝佳选择; 3. 小区居住安静舒适,让您拥有高品质的生活环境; 4. 小区绿化率高,绿树成荫鸟语花香让您随时呼吸到新鲜空气。
-
小区配套问经纪人
火星园是太阳星城三期项目,是一个综合建筑群,包括住宅、商业、办公和其他配套设施;项目交融风光水气帝京精华与国际都会时尚文明,未来项目将成就以“上等城市区域新生活场”为居宅理想的高尚社区。整个区域规划定位为“以绿色居住为导向的国际化大社区”,绿化用地占50%以上。坝河贯穿太阳星城,形成其特有的生态亲水建筑景观。同时,社区内精心营造小区景观,形成了双重景观相互映照,自然生态和精雕细琢的景观和谐结合。太阳星城三期在规划、建筑、产品、配套、生活模式等诸多方面同步世界主流都会形态,不但为这里全球化人群提供契合
周边配套
地址:西坝河北里81-5号(太阳宫夏家坟村)
- 免费咨询
- 专业服务
- 区域解读
- 户型分析
免责声明:房源信息由网站用户提供,其真实性、合法性由信息提供者负责,最终以政府部门登记备案为准。本网站内容凡涉及面积单位均为建筑面积,本网站不声明或保证内容之正确性和可靠性,租赁该房屋时,请谨慎核查。

