16500
元/月
押一付三
南北通透光熙家园3室2厅精装修
-
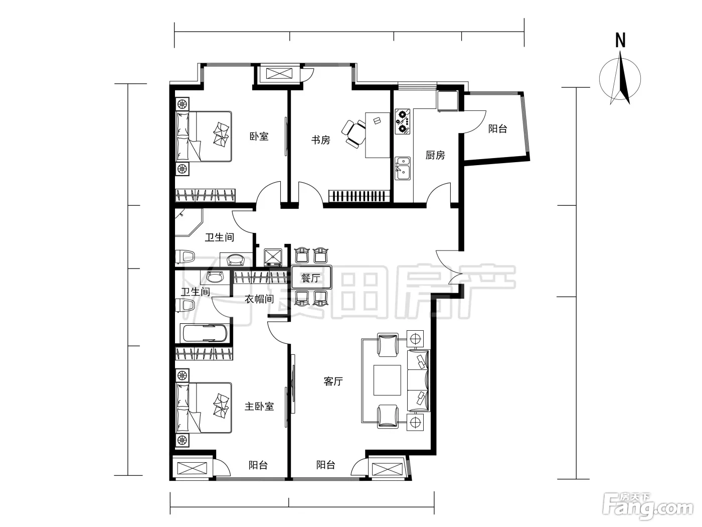
3室2厅2卫
整租
-
154.99㎡
面积
-
低层/21层
楼层
-
南北
朝向
2026-01-11更新
租房不踩坑
3000+人正在热聊
加入群聊
-
看房
暂无
-
装修
精装修
-
入住
2026-02-07 00:00:00
-
咨询经纪人,了解更多房源信息
问一问
郑重提示:请您在签订合同之前,切勿支付任何形式的费用,以免上当受骗。
费用明细
-
押一付三
付款方式
-
16500
租金(元/月)
-
***
押金
-
***
服务费
- 房租含取暖费吗?
- 房租含物业费吗?
房源描述
-
房源亮点问经纪人
相信为您推荐的这套房子您一定会满意,赶快行动吧,先到先得! 房屋年代∶2009,面积∶154.99平方米,朝向∶南北 1. 小区配备高端物业管理,让你享受宾至如归的服务; 2. 小区人文素质高,是您的居家的绝佳选择; 3. 小区居住安静舒适,让您拥有高品质的生活环境; 4. 小区绿化率高,绿树成荫鸟语花香让您随时呼吸到新鲜空气。
-
小区配套问经纪人
和平里de小镇光熙家园位于北京国门——三元桥的北侧,北京市交通枢纽——东直门的东北侧,二环与三环之间。弥足珍贵的地理位置,在土地稀缺的城市生活核心区尽可能的保证生活的高舒适度。项目根据所处地块的特点与优势,有效利用东、西向绿化带,小区自成一体,浑然天成的成为城市中心的理想生态城。秉承一种自由与舒适的原创思想,建筑形式表现为都市方正主义,采光度及舒度俱佳,建筑总高度错落于45~75米之间,层高2.8米。整体色彩尽显豪华气度。在建筑理念方面,更是用中国化的方正手法,充分满足视觉美感需求的同时,倍显居住的舒适与
周边配套
地址:东北三环太阳宫桥南侧光熙门城铁东侧
- 免费咨询
- 专业服务
- 区域解读
- 户型分析
免责声明:房源信息由网站用户提供,其真实性、合法性由信息提供者负责,最终以政府部门登记备案为准。本网站内容凡涉及面积单位均为建筑面积,本网站不声明或保证内容之正确性和可靠性,租赁该房屋时,请谨慎核查。


