8000
元/月
面议
国贸大望路CBD豪华三居室全新定制装修家具电器全齐随时看房
-
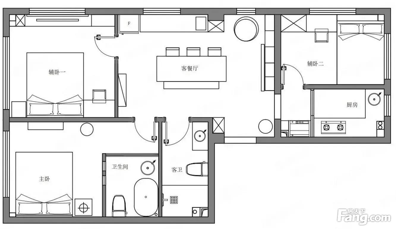
3室1厅2卫
整租
-
150㎡
面积
-
底层/4层
楼层
-
南北
朝向
2026-01-04更新
租房不踩坑
3000+人正在热聊
加入群聊
-
看房
暂无
-
装修
精装修
-
入住
暂无
-
咨询经纪人,了解更多房源信息
问一问
郑重提示:请您在签订合同之前,切勿支付任何形式的费用,以免上当受骗。
费用明细
-
面议
付款方式
-
8000
租金(元/月)
-
***
押金
-
***
服务费
- 房租含取暖费吗?
- 房租含物业费吗?
房屋设施
- 床
- 宽带
- 暖气
- 电视
- 空调
- 冰箱
- 洗衣机
- 热水器
- 煤气
- 家具
- 微波炉
- 可做饭
- 卫生间
- 沙发
- 衣柜
- 阳台
- 电梯
- 油烟机
- 智能门锁
- 橱柜
- 燃气灶
- 电磁炉
- 餐桌
- 电话
- 厨具
- 独立卫生间
- 独立阳台
- 露台
- 阁楼
- 游泳池
- 阳光房
房源描述
-
房源亮点问经纪人
一、项目介绍 1、楼盘名称:高碑店西店海棠园 2、出租面积:120平米 3、房租报价:8000元/月 4、房屋现状:精装修、带家具 5、网络通讯:联通、电信、移动 6、房屋情况:空置随时可看房 7、燃气:有 8、看房有惊喜业主直租 二、房源优势 ,公交,项目周边配套设施齐全,交通方便, 本人主做全北京二三四五环别墅,独栋会所,四合院,资源多多;高碑店别墅项目位于东四环外!京通快速南侧,距离国贸3,临通惠河,环境优美, 现在高碑店在租房源较多,只要您有需求,我就能给您找到合适的房子!此房源不满意可以点击我的头像,获取更多!随时看房 (1)全程看房,分文不取。 (2)专业的团队为您匹适房源,让您省时、省力。 (3)强大的资源系统,让您全面了解项目以及市场。 (4)带看、签约、验房、交接等全程参与,用无微不至的服务让您满意。 (5)周边项目介绍以及帮贵公司分析市场行情。
-
小区配套问经纪人
小区绿化。环境优美。宁静和谐,好环境总会给人带来好心情
-
服务介绍问经纪人
本人从事房地产经纪行业多年,了解周边小区的物业及生活配套情况,客户满意,是我的职业追求,我相信,拥有专业的知识及真诚的服务才能获得共赢。 公司投诉电话:13811521168 公司投诉电话:13811521168
-
周边配套问经纪人
小区地理位置好,配套设施齐全,交通便利,居民素质高。
-
交通出行问经纪人
小区地理位置佳,交通便利,公交地铁都有,线路也很多!
朝阳高碑店
建筑类型板楼
周边配套
地址:惠河南街南岸1号
- 免费咨询
- 专业服务
- 区域解读
- 户型分析
免责声明:房源信息由网站用户提供,其真实性、合法性由信息提供者负责,最终以政府部门登记备案为准。本网站内容凡涉及面积单位均为建筑面积,本网站不声明或保证内容之正确性和可靠性,租赁该房屋时,请谨慎核查。

