26000
元/月
面议
3室2厅泛海国际居住区碧海园
-
3室2厅2卫
整租
-
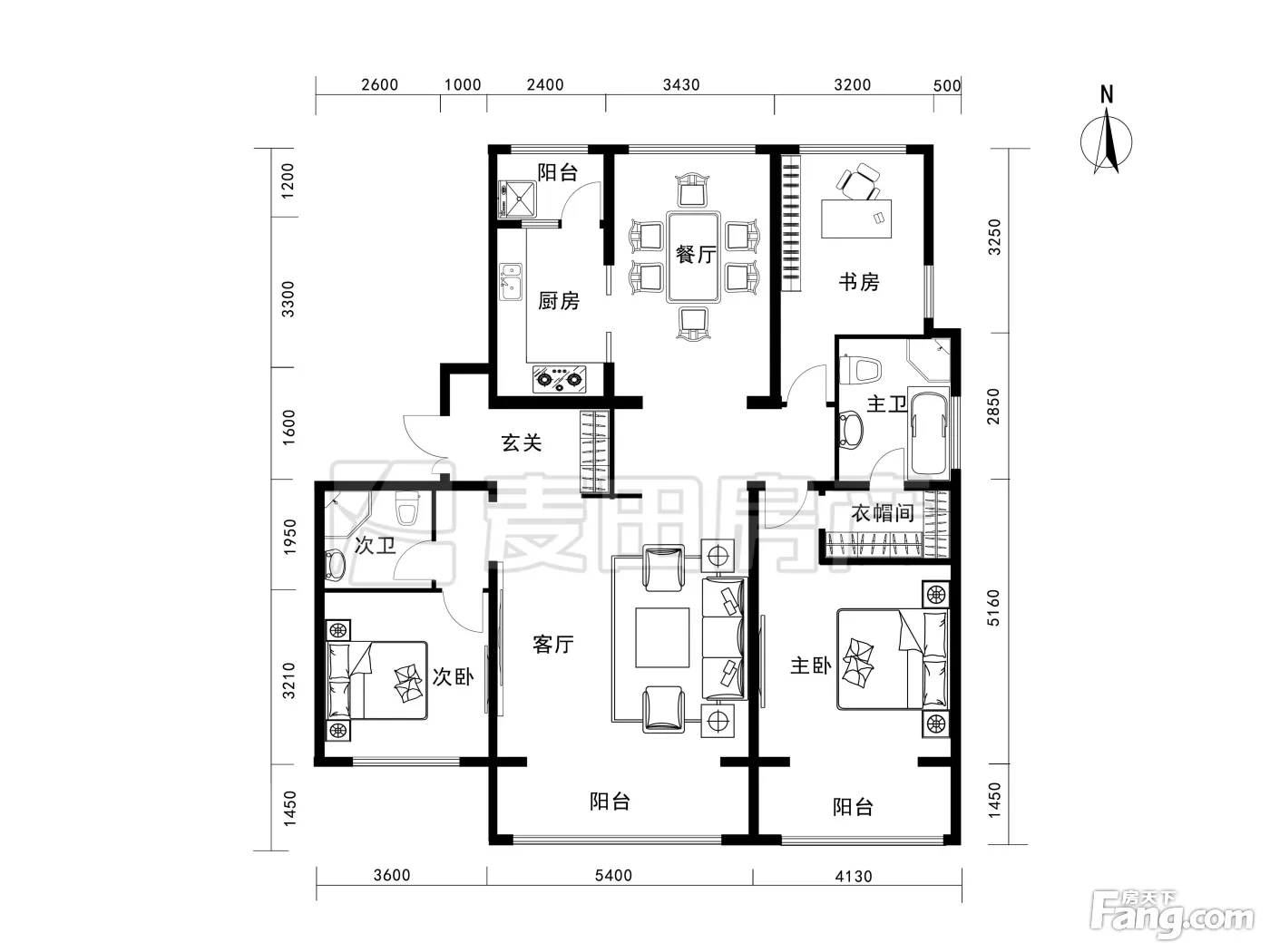
181.72㎡
面积
-
中层/21层
楼层
-
南北
朝向
2025-12-31更新
租房不踩坑
3000+人正在热聊
加入群聊
-
看房
暂无
-
装修
精装修
-
入住
2025-10-31 00:00:00
-
咨询经纪人,了解更多房源信息
问一问
郑重提示:请您在签订合同之前,切勿支付任何形式的费用,以免上当受骗。
费用明细
-
面议
付款方式
-
26000
租金(元/月)
-
***
押金
-
***
服务费
- 房租含取暖费吗?
- 房租含物业费吗?
房源描述
-
房源亮点问经纪人
相信为您推荐的这套房子您一定会满意,赶快行动吧,先到先得! 房屋年代∶2008,面积∶181.72平方米,朝向∶南北 1. 小区配备高端物业管理,让你享受宾至如归的服务; 2. 小区人文素质高,是您的居家的绝佳选择; 3. 小区居住安静舒适,让您拥有高品质的生活环境; 4. 小区绿化率高,绿树成荫鸟语花香让您随时呼吸到新鲜空气。
-
小区配套问经纪人
泛海国际碧海园区临近东四环路,距离朝阳公园500米,远离闹市区的喧嚣又不离高品质生活圈子,与繁华的商务区生活若即若离。 小区共7栋楼,为18层南北通透低密度板楼社区,围合式建筑,环抱花园,户户观景。百米楼间距,前后无遮挡。 英式园林设计风格,融和了自然的英伦风情园林内各种树木交差错落,宛若纯自然的景色让您避开城市喧嚣,其间点缀的花草为园区更添几许曼妙风情。 一站式教育不出社区步行5-10可达幼儿园;府学小学;华中师范,在家就能看着孩子从幼儿园上到高中。 户型方正,户户有内置阳台,使用率高达81%。大落地
周边配套
地址:朝阳公园东侧东四环姚家园路
- 免费咨询
- 专业服务
- 区域解读
- 户型分析
免责声明:房源信息由网站用户提供,其真实性、合法性由信息提供者负责,最终以政府部门登记备案为准。本网站内容凡涉及面积单位均为建筑面积,本网站不声明或保证内容之正确性和可靠性,租赁该房屋时,请谨慎核查。

