41600
元/月
面议
西宸原著别墅3室3厅
-
3室3厅3卫
整租
-
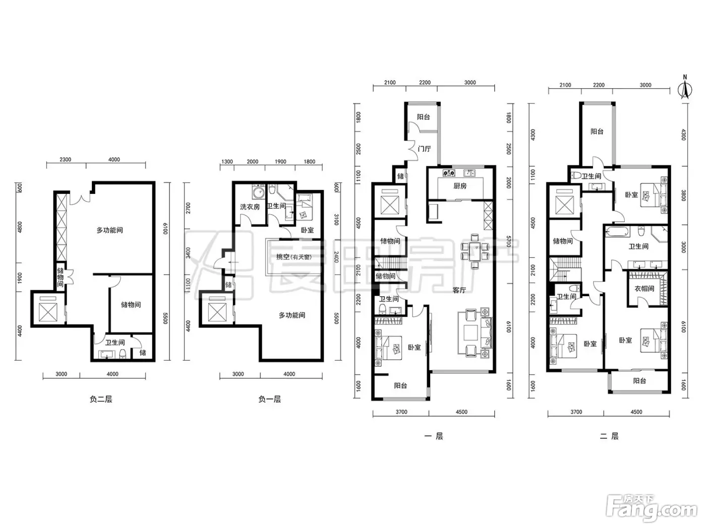
342.22㎡
面积
-
中层/5层
楼层
-
南
朝向
2025-12-17更新
租房不踩坑
3000+人正在热聊
加入群聊
-
看房
暂无
-
装修
毛坯
-
入住
2025-03-25 00:00:00
-
咨询经纪人,了解更多房源信息
问一问
郑重提示:请您在签订合同之前,切勿支付任何形式的费用,以免上当受骗。
费用明细
-
面议
付款方式
-
41600
租金(元/月)
-
***
押金
-
***
服务费
- 房租含取暖费吗?
- 房租含物业费吗?
房源描述
-
房源亮点问经纪人
相信为您推荐的这套房子您一定会满意,赶快行动吧,先到先得! 房屋年代∶2016,面积∶342.22平方米,朝向∶ 1. 小区配备高端物业管理,让你享受宾至如归的服务; 2. 小区人文素质高,是您的居家的绝佳选择; 3. 小区居住安静舒适,让您拥有高品质的生活环境; 4. 小区绿化率高,绿树成荫鸟语花香让您随时呼吸到新鲜空气。
-
小区配套问经纪人
2014年2月,龙湖地产携手葛洲坝拿下丽泽商务区重要的一块地,2015年6月,西宸原著,首秀30套一战成名,当月认购额10亿,开启了内城别墅的先河。西宸原著,西三环,内城藏府园,龙湖别墅品系原著系塔尖之作,承龙湖·颐和原著血统,基于西三环西贵地脉,创新室演绎原著系“中技西魂”之精髓,铸造原著家族福祉,西三环地脉上的园和府。
周边配套
地址:西局前街与西局南街交叉路口向东约100米
- 免费咨询
- 专业服务
- 区域解读
- 户型分析
免责声明:房源信息由网站用户提供,其真实性、合法性由信息提供者负责,最终以政府部门登记备案为准。本网站内容凡涉及面积单位均为建筑面积,本网站不声明或保证内容之正确性和可靠性,租赁该房屋时,请谨慎核查。


