240000
元/月
押一付三
西城区 琉璃厂临主街两层独栋四合院出租
-
3室4厅2卫
整租
-
500㎡
面积
-
顶层/2层
楼层
-
南北
朝向
2025-08-28更新
租房不踩坑
3000+人正在热聊
加入群聊
-
看房
电话预约
-
装修
精装修
-
入住
暂无
-
咨询经纪人,了解更多房源信息
问一问
郑重提示:请您在签订合同之前,切勿支付任何形式的费用,以免上当受骗。
费用明细
-
押一付三
付款方式
-
240000
租金(元/月)
-
***
押金
-
***
服务费
- 房租含取暖费吗?
- 房租含物业费吗?
房屋设施
- 床
- 宽带
- 暖气
- 电视
- 空调
- 冰箱
- 洗衣机
- 热水器
- 煤气
- 家具
- 微波炉
- 可做饭
- 卫生间
- 沙发
- 衣柜
- 阳台
- 电梯
- 油烟机
- 智能门锁
- 橱柜
- 燃气灶
- 电磁炉
- 餐桌
- 电话
- 厨具
- 独立卫生间
- 独立阳台
- 露台
- 阁楼
- 游泳池
- 阳光房
房源描述
-
房源亮点问经纪人
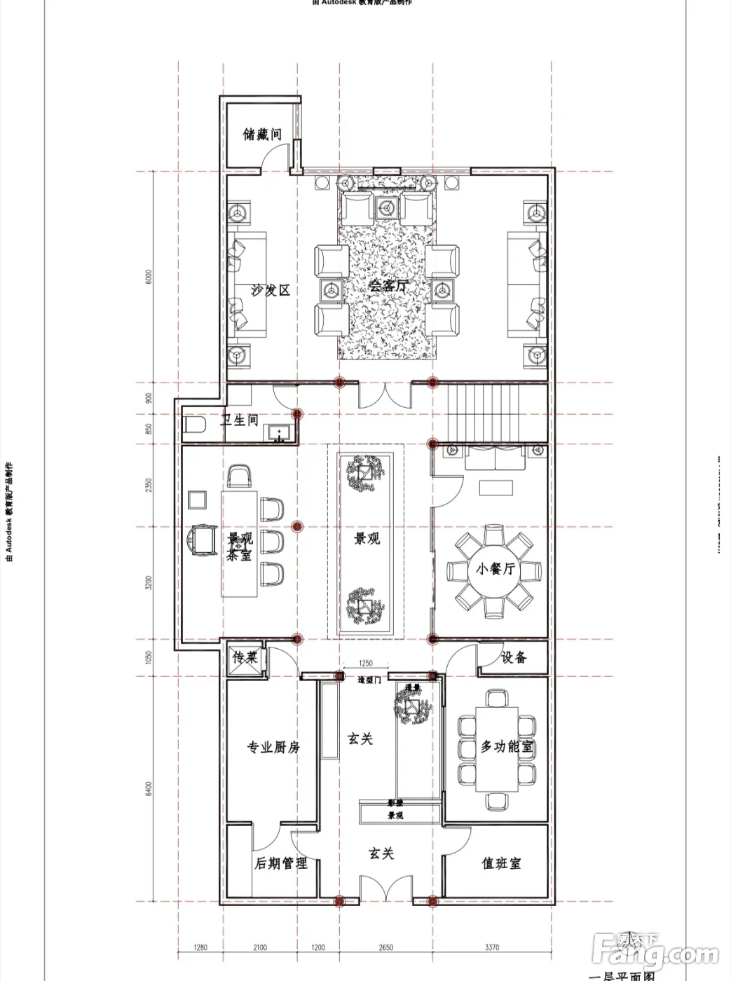
年租288万 面积500平米外加150平米 门口路边可停多辆车,北边60米就是底下、地上停车场 ????格局:ktv,60平米中堂,20人的大餐厅和8人的小餐厅2个餐厅,茶室,雪茄吧,办公区域,专业厨房,传菜梯, ???站在可看中国尊,带景观休息区 看房提前预约
周边配套
地址:广安门琉璃厂南新华街
- 免费咨询
- 专业服务
- 区域解读
- 户型分析
免责声明:房源信息由网站用户提供,其真实性、合法性由信息提供者负责,最终以政府部门登记备案为准。本网站内容凡涉及面积单位均为建筑面积,本网站不声明或保证内容之正确性和可靠性,租赁该房屋时,请谨慎核查。


