地铁5 15号线300米 5米层高 精装修甲级写字楼
-
7元/平米·天
租金
-
精装修
装修
-
4500㎡
建筑面积
租房不踩坑
3000+人正在热聊
加入群聊
-
楼盘名称
国家会议中心
-
区域
朝阳
-
物业费
暂无
-
类型
纯写字楼
-
等级
暂无
-
挂牌时间
2025-08-12
-
支付方式
押一付三
-
入驻时间
2025-08-12
费用明细
-
押一付三
付款方式
-
7
租金(元/平米·天)
-
***
押金
-
***
服务费
- 房租含取暖费吗?
- 房租含物业费吗?
房源描述
-
房源亮点问经纪人
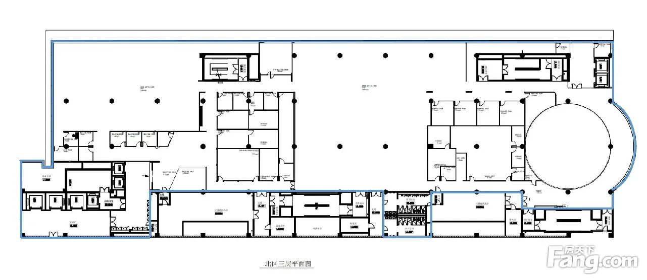
国家会议中心一期写字楼 区域面积:北区三层 4533.22平方米 报价:8元/天/㎡(含0.9元物业费)可谈 付款方式;押三付三 朝向:北 使用率:75% 楼层层高/净高:5米/3米 进深:23米(南北) 展示面:西侧24米,北118米 楼板承重:350公斤/平米 电梯:5部客梯、3部货梯 空调:四管制风机盘管,工作日8:30-18:00 现状配套设施: ①卫生间:女3坐3蹲、男6站3坐3蹲 交通:地铁5号/15号线奥林匹克公园站350米
-
服务介绍问经纪人
服务介绍:(1)全程免费看房,不收您任何费用。2)专业的团队为您匹配合适房源,为您谈价,让您省时、省力、省钱.(3)强大的资源系统,让您全面了解项目以及市场(4)带看、谈判、斡旋、签约、验房、交接等全
-
周边配套问经纪人
房源介绍 1、房屋现状:精装修、带家具2、网络通讯:联通、电信、移动3、房屋情况:随时可看房4、配套:美食城、便利店、银行5、无任何居间费,直接跟业主签约
-
交通出行问经纪人
城铁离城铁10/8号线北土城站10距离交通路网发达便捷,十分适合商务出行与员工通勤。周边多条公交线路,出行非常方便。
朝阳奥林匹克公园
建成2009年
周边配套
地址:天辰东路7号
- 免费咨询
- 专业服务
- 区域解读
- 户型分析
免责声明:房源信息由网站用户提供,其真实性、合法性由信息提供者负责,最终以政府部门登记备案为准。本网站内容凡涉及面积单位均为建筑面积,本网站不声明或保证内容之正确性和可靠性,租赁该房屋时,请谨慎核查。

