北京国贸维一七星超甲写字楼银泰中心238平特价出租
-
12元/平米·天
租金
-
精装修
装修
-
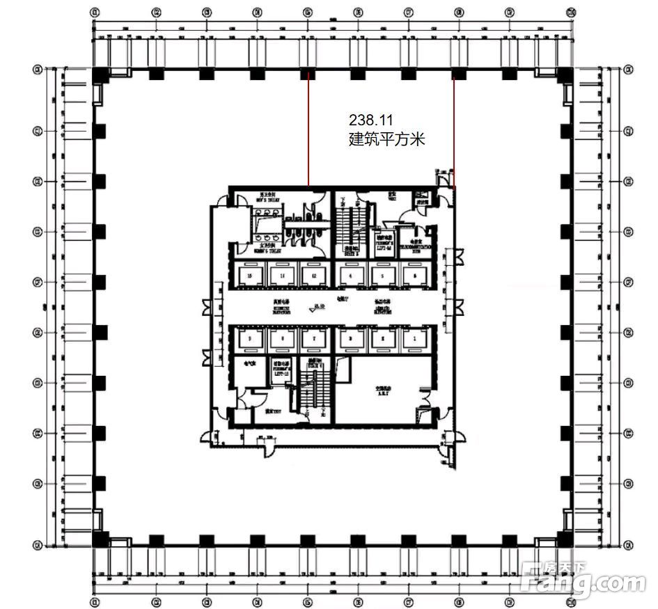
238㎡
建筑面积
租房不踩坑
3000+人正在热聊
加入群聊
-
楼盘名称
北京银泰中心写字楼
-
区域
朝阳
-
物业费
暂无
-
类型
纯写字楼
-
等级
暂无
-
挂牌时间
2025-07-23
-
支付方式
押三付一
-
入驻时间
2025-7-23
费用明细
-
押三付一
付款方式
-
12
租金(元/平米·天)
-
***
押金
-
***
服务费
- 房租含取暖费吗?
- 房租含物业费吗?
房源描述
-
房源亮点问经纪人
<div style="font-size:14px;">北京银泰中心(238.11建筑平方米)<br/>BEIJING?YINTAI?CENTRE?OFFICE?TOWER<br/>[图片]<br/>单元位置:26层04单元<br/>Location:Unit?04?of?Level?26<br/>面积:238.11建筑平方米<br/>Area:?Approx.?238.11sq.m?(gross?floor?area)<br/>朝向:北<br/>Orientation:North<br/>价格:欢迎咨询<br/>物业管理费:RMB?38.00?/建筑平方米/月(含税)<br/>Management?Fee:?RMB?38.00?/sq.m/month(Inclusive?of?VAT)<br/>#银泰中心#国贸大厦#中国尊#中信大厦#启皓大厦 #国贸三期</div>
-
服务介绍问经纪人
1.全程免费服务 2.合理匹配房源、安排看房时间路线 3.专业商务洽谈、签订租赁合同 4.全程物业交接 5.设计装修、家具采购 6.完善的售后服务等六项内容
-
周边配套问经纪人
周边生活设施齐全,具备车库/车位等基础设施,商店距离近,乘坐公交方便
-
交通出行问经纪人
交通便利:地铁站,楼下就是各路公交线路。出行占尽先机。
朝阳建国门
建成2008年
周边配套
地址:建国门外大街2号(邮编:100022)
- 免费咨询
- 专业服务
- 区域解读
- 户型分析
免责声明:房源信息由网站用户提供,其真实性、合法性由信息提供者负责,最终以政府部门登记备案为准。本网站内容凡涉及面积单位均为建筑面积,本网站不声明或保证内容之正确性和可靠性,租赁该房屋时,请谨慎核查。

