航空科技大厦北京文化创意大厦 嘉铭奥森产业园4691平出租
-
3元/平米·天
租金
-
精装修
装修
-
4691㎡
建筑面积
租房不踩坑
3000+人正在热聊
加入群聊
-
楼盘名称
嘉铭奥森产业园
-
区域
昌平
-
物业费
20元/平米·月
-
类型
纯写字楼
-
等级
暂无
-
挂牌时间
2025-07-22
-
支付方式
押三付三
-
入驻时间
2025-07-22
费用明细
-
押三付三
付款方式
-
3
租金(元/平米·天)
-
***
押金
-
***
服务费
- 房租含取暖费吗?
- 房租含物业费吗?
房源描述
-
房源亮点问经纪人
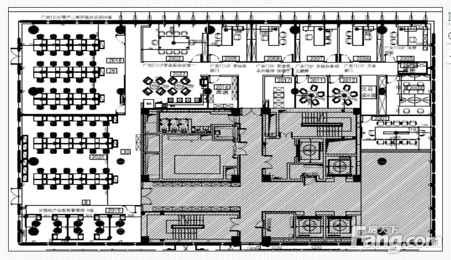
嘉铭奥森产业园租赁热线:139 1091 0271 =========================== 楼盘名称:嘉铭奥森产业园 项目地址:北京市昌平区清河路陈家营西路南300米 建筑面积:31340㎡ 面积:18731㎡ 面积:2328㎡ 地上楼层:东塔10层,西塔7层 整层面积:1180㎡ 出租面积:-7层共4691㎡ 租金单价:3-4元/天/㎡ 物业费用:30元/月/㎡ 租赁期限:3年起 付款方式:押三付三 房源状态:装修 车位数量:129个 交通情况:地铁5号线立水桥南站。 周边配套:银行,餐饮,咖啡,酒店,购物中心,员工食堂,地下车库等。 【本人介绍】 本人主要负责:金融街、丽泽,CBD、东二环,东三环沿线,中关村、亚奥,望京等北京几大重要商圈写字楼租售业务!
-
服务介绍问经纪人
麦竭诚为您提供专业的全面的房屋租赁买卖服务,帮您在北京这座城市找到温馨舒适的家,希望成为您和您家人的私人房产顾问!
-
周边配套问经纪人
周边生活设施齐全,具备车库/车位等基础设施,商店距离近,乘坐公交方便。
-
交通出行问经纪人
小区地理位置得天独厚,多种交通线路,出行交通便利
昌平立水桥
周边配套
地址:清流路
- 免费咨询
- 专业服务
- 区域解读
- 户型分析
免责声明:房源信息由网站用户提供,其真实性、合法性由信息提供者负责,最终以政府部门登记备案为准。本网站内容凡涉及面积单位均为建筑面积,本网站不声明或保证内容之正确性和可靠性,租赁该房屋时,请谨慎核查。


