惠新西街瀛铸商务中心临街独栋1056平米现房出租北辰时代大厦
-
5元/平米·天
租金
-
简装修
装修
-
1056.32㎡
建筑面积
租房不踩坑
3000+人正在热聊
加入群聊
-
楼盘名称
万科时代中心奥林
-
区域
朝阳
-
物业费
暂无
-
类型
纯写字楼
-
等级
暂无
-
挂牌时间
2025-07-22
-
支付方式
押三付三
-
入驻时间
2025-07-22
费用明细
-
押三付三
付款方式
-
5
租金(元/平米·天)
-
***
押金
-
***
服务费
- 房租含取暖费吗?
- 房租含物业费吗?
房源描述
-
房源亮点问经纪人
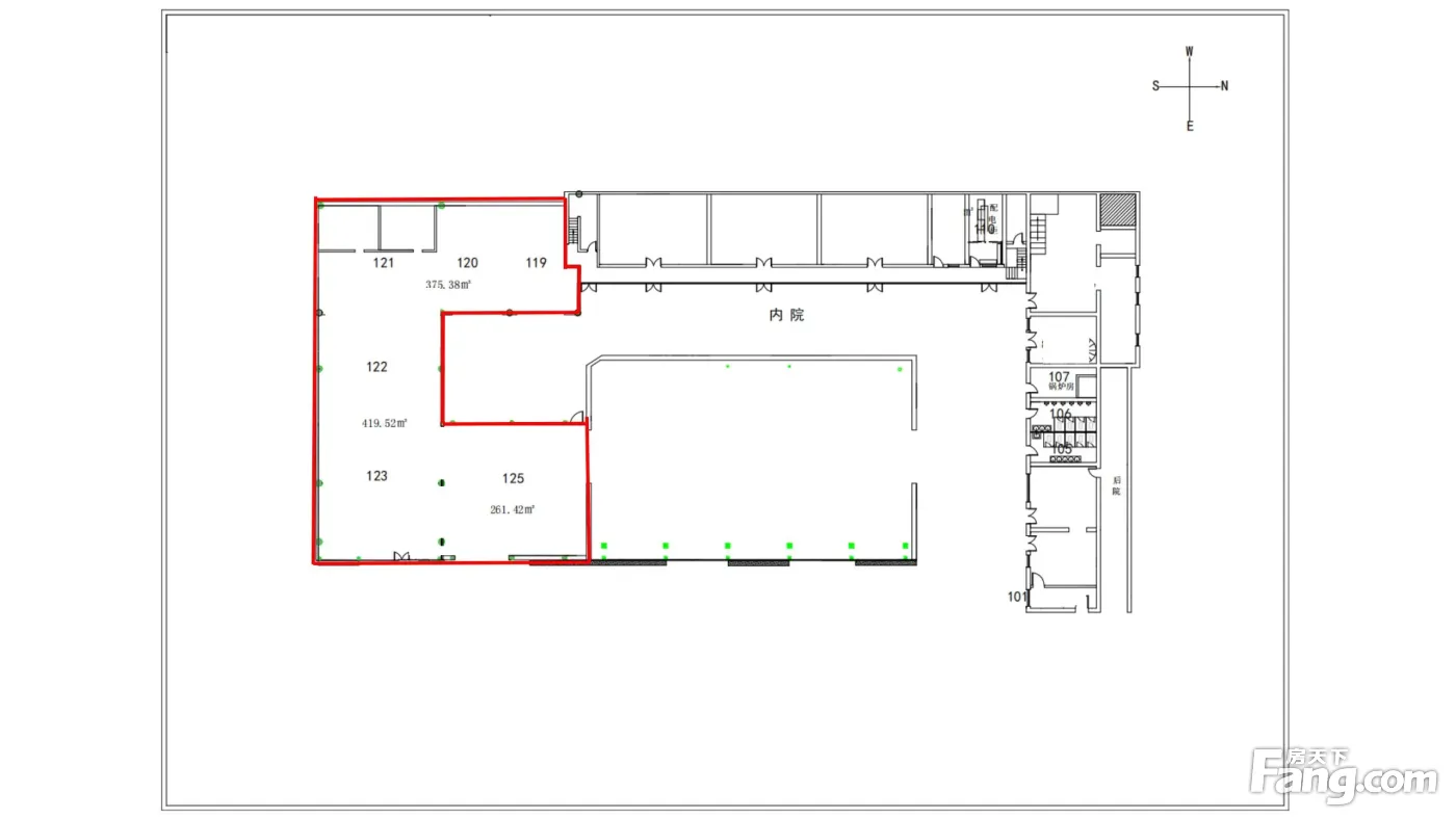
瀛铸商务中心 1层联排独栋 面积:1056.32平米 报价:5元/天/平米 付款:押三付三 年限:2年起 装修:独立门头,超市遗留简装,大开间 空调:自装自控24空调 供暖:园区集中供暖 层高:4.3米 地铁:5号线惠新西街北口500米,紧邻北苑路、北四环东路
-
服务介绍问经纪人
本人从事房地产行业多年;你刚好需要,我刚好专业,涉及到北京各区,昌平、海淀、门头沟、朝阳,通州、大兴、亦庄、顺义等都有项目,多年的地产经验、已经跟很多业主成为朋友,长期合作,希望能为您提供专业服务。
-
周边配套问经纪人
配套设施: :亚运村中心、小牛津双语、亚运村第二、北京联合大学、对外经济贸易大学英语 医院:北京藏医院、安外艺医院 银行:大屯信用社、招商银行北苑路支行、北京农村商业银行安惠里分理处 超市:北辰购物中心 餐饮:郁都天下餐饮、德川家饮食、如家快捷酒店
-
交通出行问经纪人
地铁线路:地铁5号线惠新西街北口站,10号线惠新西街南口 公交线路:安慧桥东379; 386; 406; 408; 419; 479; 656; 658; 660; 689; 696; 753; 939; 944; 944支; 984; 984区; 运通110; 运通113;机场巴士5线等
朝阳亚运村
建成2021年
周边配套
地址:北京市朝阳区北苑路180号
- 免费咨询
- 专业服务
- 区域解读
- 户型分析
免责声明:房源信息由网站用户提供,其真实性、合法性由信息提供者负责,最终以政府部门登记备案为准。本网站内容凡涉及面积单位均为建筑面积,本网站不声明或保证内容之正确性和可靠性,租赁该房屋时,请谨慎核查。


