开发商直租 财源国际 精装修 适合私募 基金 外资 律所
-
59062元/月
租金
-
精装修
装修
-
322㎡
建筑面积
租房不踩坑
3000+人正在热聊
加入群聊
-
楼盘名称
IFC财源国际中心
-
区域
朝阳
-
物业费
32元/平米·月
-
类型
纯写字楼
-
等级
暂无
-
挂牌时间
2025-04-01
-
支付方式
押一付三
-
入驻时间
2025-03-20
费用明细
-
押一付三
付款方式
-
59062
租金(元/月)
-
***
押金
-
***
服务费
- 房租含取暖费吗?
- 房租含物业费吗?
房源描述
-
房源亮点问经纪人
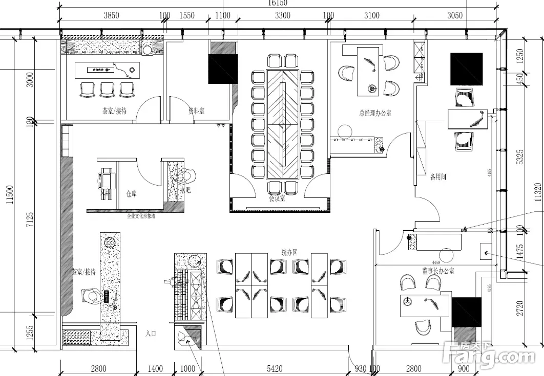
财源国际 A座 20层 323.63㎡ 东、北双面采光,视野开阔 精装交付 5个房间+2个功能间+8个工区
-
服务介绍问经纪人
服务介绍:全程带看免费咨询带看,专车接,专业解答,竭诚服务,,一站式办公租赁服务,包含装修,办公家具,绿植,网络办理,工商注册财税代理记账。
-
周边配套问经纪人
电梯楼层 40层 项目高度 152m 总建筑面积 160000㎡ 标准层建筑面积 1700-4000㎡ 整层使用率 65-68% 建成时间 2011年 入驻时间 2012年 标准层高 4.1 m 净高 2.85 m 网络地板 150mm 进深 12 m 会议中心、银行、商务宴请、咖啡、简餐、健身、便利店、员工餐厅、美发、洗衣、洗车配套齐全 宝格丽酒店设计顾问携手Gensler品质提升进行中
-
交通出行问经纪人
地铁1号线17号线永安里站,步行100米 B2-B5共计600 个车位 固定车位租金:1500-2200元/车位/月 (B2-2200;B3-1600;B4-1500) 临时停车:8元/
朝阳国贸
建成2008年
周边配套
地址:建国门外大街甲8号
- 免费咨询
- 专业服务
- 区域解读
- 户型分析
免责声明:房源信息由网站用户提供,其真实性、合法性由信息提供者负责,最终以政府部门登记备案为准。本网站内容凡涉及面积单位均为建筑面积,本网站不声明或保证内容之正确性和可靠性,租赁该房屋时,请谨慎核查。

