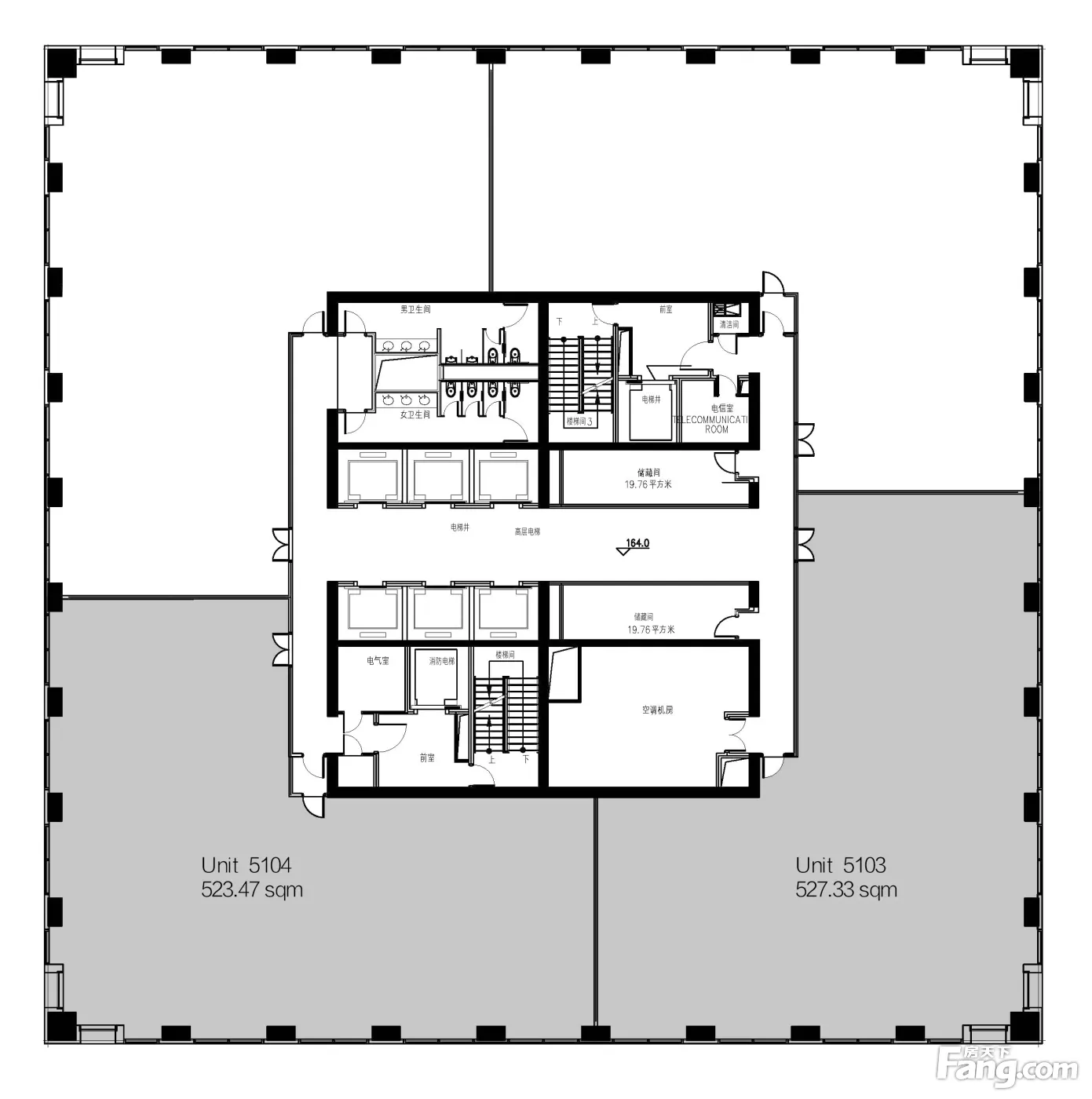
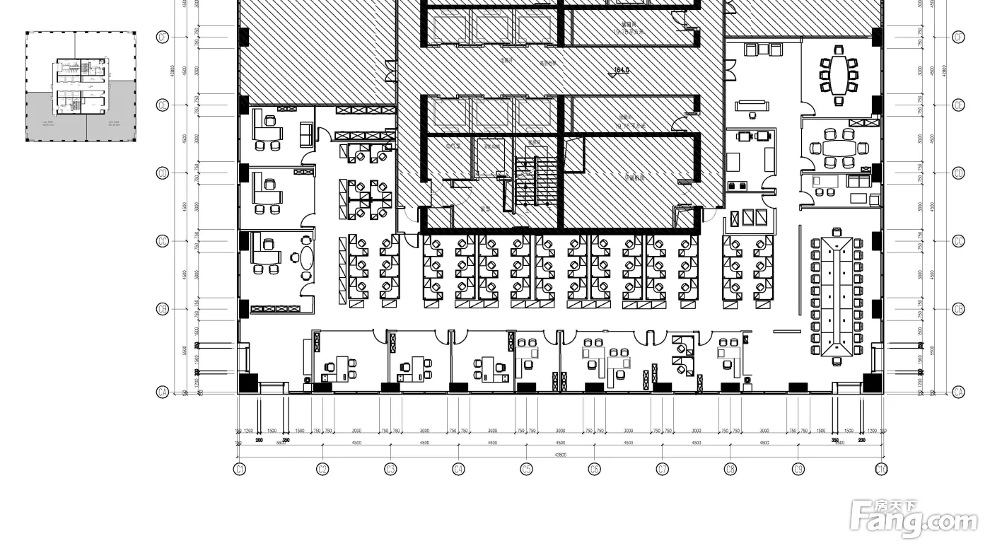
51层高层 精装修 银泰中心 1000平 精装修 东南西朝向
-
6元/平米·天
租金
-
精装修
装修
-
1000㎡
建筑面积
租房不踩坑
3000+人正在热聊
-
楼盘名称
北京银泰中心写字楼
-
区域
朝阳
-
物业费
38元/平米·月
-
类型
纯写字楼
-
等级
暂无
-
挂牌时间
2025-04-01
-
支付方式
押一付三
-
入驻时间
2025-03-21
费用明细
-
押一付三
付款方式
-
6
租金(元/平米·天)
-
***
押金
-
***
服务费
- 房租含取暖费吗?
- 房租含物业费吗?
房源描述
-
房源亮点问经纪人
银泰中心 51层楼层,东南西朝向 精装修遗留,随时看房 地铁上盖,10号线1号线国贸站
-
服务介绍问经纪人
服务介绍:全程带看免费咨询带看,专车接,专业解答,竭诚服务,,一站式办公租赁服务,包含装修,办公家具,绿植,网络办理,工商注册财税代理记账。
-
周边配套问经纪人
商业综合体 高端购物:国贸商城(奢侈品聚集)、SKP(全球顶商场)、华贸中心、银泰中心。 平价消费:万达广场、建外SOHO(餐饮/小店)。 餐饮 高端餐饮:国贸大厦高层餐厅(俯瞰CBD)、福楼法餐、京A Taproom。 大众选择:建外SOHO美食街、万达广场连锁品牌。 酒店 五星级:中国大饭店、国贸大酒店、新国贸饭店、JW万豪。 商务型:如家、汉庭(周边分布)。 办公 地标写字楼:国贸三期(北京楼之一)、财富金融中心、央视总部大楼。 医疗 三甲医院:北京朝阳医院(10)。 私立医院:和睦家(国际医疗服务)。 教育 国际学校:北京芳草地国际学校
-
交通出行问经纪人
地铁 国贸站:1号线(贯穿东西,天安门、王府井、西单等)、10号线(环线,换乘便捷)。 金台夕照站(步行5):10号线、在建22号线(平谷线,未来连接燕郊/平谷)。 大望路站(步行10):1号线、14号线(望京、北京南站)。 公交 国贸桥枢纽:数十条公交线路覆盖全城,包括1路、4路、57路、58路、666路、668路、805路等,可通州、大兴、亦庄等区域。 自驾/打车 主干道:东三环(国贸桥)、建国路、通惠河北路,但早晚高峰拥堵严重。 停车场:国贸商城、银泰中心、SKP等商场提供停车位(收费较高)。
朝阳建国门
建成2008年
周边配套
- 免费咨询
- 专业服务
- 区域解读
- 户型分析

