国贸大厦I FC大厦侨福芳草地 华贸中心228平精装拎包入住
-
6元/平米·天
租金
-
精装修
装修
-
228㎡
建筑面积
租房不踩坑
3000+人正在热聊
加入群聊
-
楼盘名称
国贸大厦二期
-
区域
朝阳
-
物业费
60元/平米·月
-
类型
纯写字楼
-
等级
暂无
-
挂牌时间
2025-11-17
-
支付方式
面议
-
入驻时间
2025-11-30
费用明细
-
面议
付款方式
-
6
租金(元/平米·天)
-
***
押金
-
***
服务费
- 房租含取暖费吗?
- 房租含物业费吗?
房源描述
-
房源亮点问经纪人
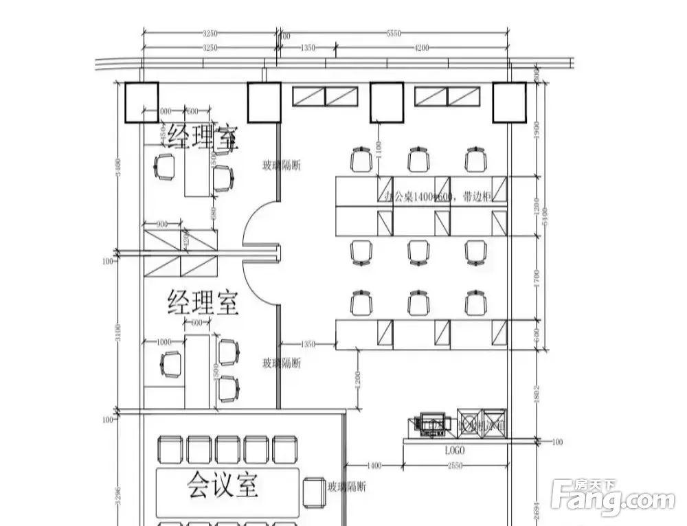
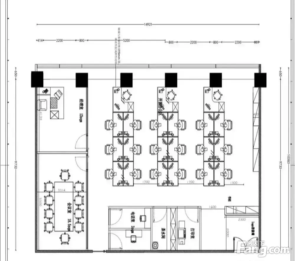
1、项目名称:国贸一期大厦 3、出租面积:160㎡、228㎡ 7、出租价格:6元/天/㎡(不含物业、发票) 1、面积朝向:北、西 8、交付标准:公共区:精装修;室:前台、会议室、经理室、室、总监室、会谈室 0、房租方式:押三付三 0、地铁10号线8号线国贸站,多路公交经过 8、大北窑西:1路;9路;28路;CBD商务班车一号线早班;快速专线169路 4、周边配套:环境优越,周边气氛浓厚、银行、餐饮、娱乐、休闲等。 4、 本人从事房产工作多年,一直秉承客户提供专业的高品质的服务为宗旨,前期:贵公司的选址,市场评估,带看。中期:谈价约见,您也可以选择直接与业主面谈。后期:装修设计,网络布线,室内保洁 6、房源内部情况尽在,您我沟通中 二、服务内容: 1、全程带您看房,不收取您任何费用 2、认真负责的帮您找到您满意的地址 3、有更多区域房源可为您推释点
-
服务介绍问经纪人
本人做房产多年,本着熟练的房产知识,为您服务,我会在短的时间内帮您找到满意的房子,不让您错失任何好房子,更不让您每天为房的事烦心,欢迎随时拨打我电话。
-
周边配套问经纪人
宽带、有线电视、中央空调、电梯、集中供暖、免费车位等
-
交通出行问经纪人
交通便利,四通八达,畅通无阻;不管您是往市内还是市外,都很方便
朝阳国贸
建成1999年
周边配套
地址:建国门外大街2号
- 免费咨询
- 专业服务
- 区域解读
- 户型分析
免责声明:房源信息由网站用户提供,其真实性、合法性由信息提供者负责,最终以政府部门登记备案为准。本网站内容凡涉及面积单位均为建筑面积,本网站不声明或保证内容之正确性和可靠性,租赁该房屋时,请谨慎核查。


