罕见小独栋户型方正利用率高438平开间随时起租|电通|恒通
-
3.9元/平米·天
租金
-
精装修
装修
-
438.86㎡
建筑面积
租房不踩坑
3000+人正在热聊
加入群聊
-
楼盘名称
电通创意广场
-
区域
朝阳
-
物业费
0.1元/平米·月
-
类型
纯写字楼
-
等级
暂无
-
挂牌时间
2024-09-06
-
支付方式
押一付三
-
入驻时间
2024-09-06
费用明细
-
押一付三
付款方式
-
3.9
租金(元/平米·天)
-
***
押金
-
***
服务费
- 房租含取暖费吗?
- 房租含物业费吗?
房源描述
-
房源亮点问经纪人
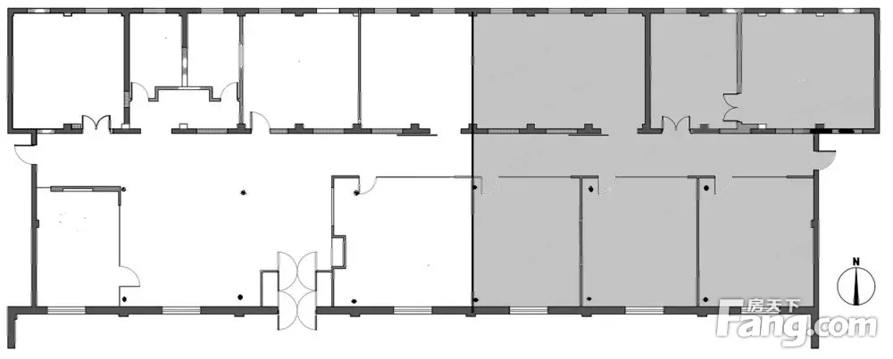
一、楼盘介绍 1、楼盘名称:电通创意广场 2、出租面积:438平米 3、房屋报价:3.9元平米天 4、房屋现状:精装修、带家具、两面采光、坐西朝东,外立面三个窗,可选一个窗改门。 5、交通情况:该项目位于东北四五环间,望京商圈、798艺术区、751时尚设计广场。 东五环和机场高速,距离首都国际机场仅16公里,通达性极强。轨道交通便捷、14号线地铁将台站,望京南站,12号线高家园站7月份开通。
-
服务介绍问经纪人
竭尽为你服务: (1)全程免费看房,分文不取。 (2)专业的团队为您匹配合适房源,让您省时、省力。 (3)强大的资源系统,让您全面了解项目以及市场。 (4)带看、签约、验房、交接等全程参与,用
-
周边配套问经纪人
(1)酒仙桥北路 恒通国际创新园UCP平-8000平电通时代创意广场平-20000平电子城IT产业园平-20000平(2) 酒仙桥路 798艺术区 -40平-1000平 电子城国际电子总部平-20000平 恒通商务园UBP平兆维工业园 平星泰中心-1700平 颐堤港平 周边配套: 银行:招商银行、中国银行、工商银行、建设银行等餐厅:西贝、小吊梨汤、大鸭梨、海底捞等 商场:颐堤港、凯德mall、久隆百货、方恒购物中心、等酒店:诺金酒店、秋果酒店、如家酒店、全季酒店、桔子水晶酒店
-
交通出行问经纪人
小区周边具有多条公交线路,出行方便,交通便利
朝阳酒仙桥
建成2012年
周边配套
地址:酒仙桥北路7号
- 免费咨询
- 专业服务
- 区域解读
- 户型分析
免责声明:房源信息由网站用户提供,其真实性、合法性由信息提供者负责,最终以政府部门登记备案为准。本网站内容凡涉及面积单位均为建筑面积,本网站不声明或保证内容之正确性和可靠性,租赁该房屋时,请谨慎核查。


