东三环沿线 双井 九龙山 商圈整层精装修带家具 拎包入住
-
6.5元/平米·天
租金
-
精装修
装修
-
1700㎡
建筑面积
租房不踩坑
3000+人正在热聊
加入群聊
-
楼盘名称
百环大厦写字楼
-
区域
朝阳
-
物业费
30元/平米·月
-
类型
纯写字楼
-
等级
暂无
-
挂牌时间
2024-08-18
-
支付方式
押三付三
-
入驻时间
2024-03-07
费用明细
-
押三付三
付款方式
-
6.5
租金(元/平米·天)
-
***
押金
-
***
服务费
- 房租含取暖费吗?
- 房租含物业费吗?
房源描述
-
房源亮点问经纪人
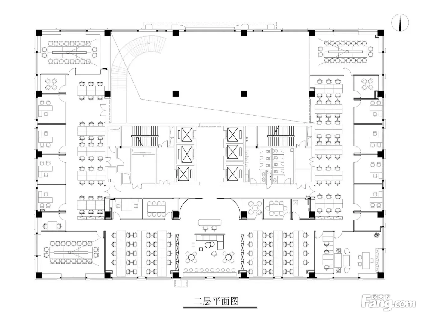
招商热线 183 112 68767 【项目名称】百环大厦 【户型面积】1700㎡ 【电梯楼层】2F 【交付标准】精装修、品牌家具 【租 期】两年起租 【朝 向】四面采光 【交 通】交通极其便利,周边有7号线、10号线、14号线三条地铁线路及公交有30多条线路通达。 【楼层优势】净高3米,旋转楼梯2层。 【项目优势】管家式物业服务;地上花园停车场、地下智能停车场;特设特斯拉充电桩;自营员工餐,绿色安全。 【楼内知名企业】康方生物、中体彩、宝宝树、美心集团、南方出版社等。
-
服务介绍问经纪人
1.全程免费看房,为您省时、省力、专车带看! 2.专业团队为您匹配房源,让您省心、放心! 3.强大的资源系统让您360度全面了解项目、市场! 4.带看、签约、物业交接等企业入住流程!
-
周边配套问经纪人
周边配套齐全,员工餐厅、餐会宴请、会议中心、各大银行、商场会所等。
-
交通出行问经纪人
周边地铁双井站,交通便利,更有多路公交大厦门口。
朝阳双井
建成2008年
周边配套
地址:北京市朝阳区广渠路66号
- 免费咨询
- 专业服务
- 区域解读
- 户型分析
免责声明:房源信息由网站用户提供,其真实性、合法性由信息提供者负责,最终以政府部门登记备案为准。本网站内容凡涉及面积单位均为建筑面积,本网站不声明或保证内容之正确性和可靠性,租赁该房屋时,请谨慎核查。


