焦奥中心5A写字楼115平至整层1850平米出租林达海渔广场
-
3元/平米·天
租金
-
精装修
装修
-
1850㎡
建筑面积
租房不踩坑
3000+人正在热聊
-
楼盘名称
焦奥中心
-
区域
朝阳
-
物业费
30元/平米·月
-
类型
纯写字楼
-
等级
暂无
-
挂牌时间
2024-09-24
-
支付方式
押三付三
-
入驻时间
2022-09-07
费用明细
-
押三付三
付款方式
-
3
租金(元/平米·天)
-
***
押金
-
***
服务费
- 房租含取暖费吗?
- 房租含物业费吗?
房源描述
-
房源亮点问经纪人
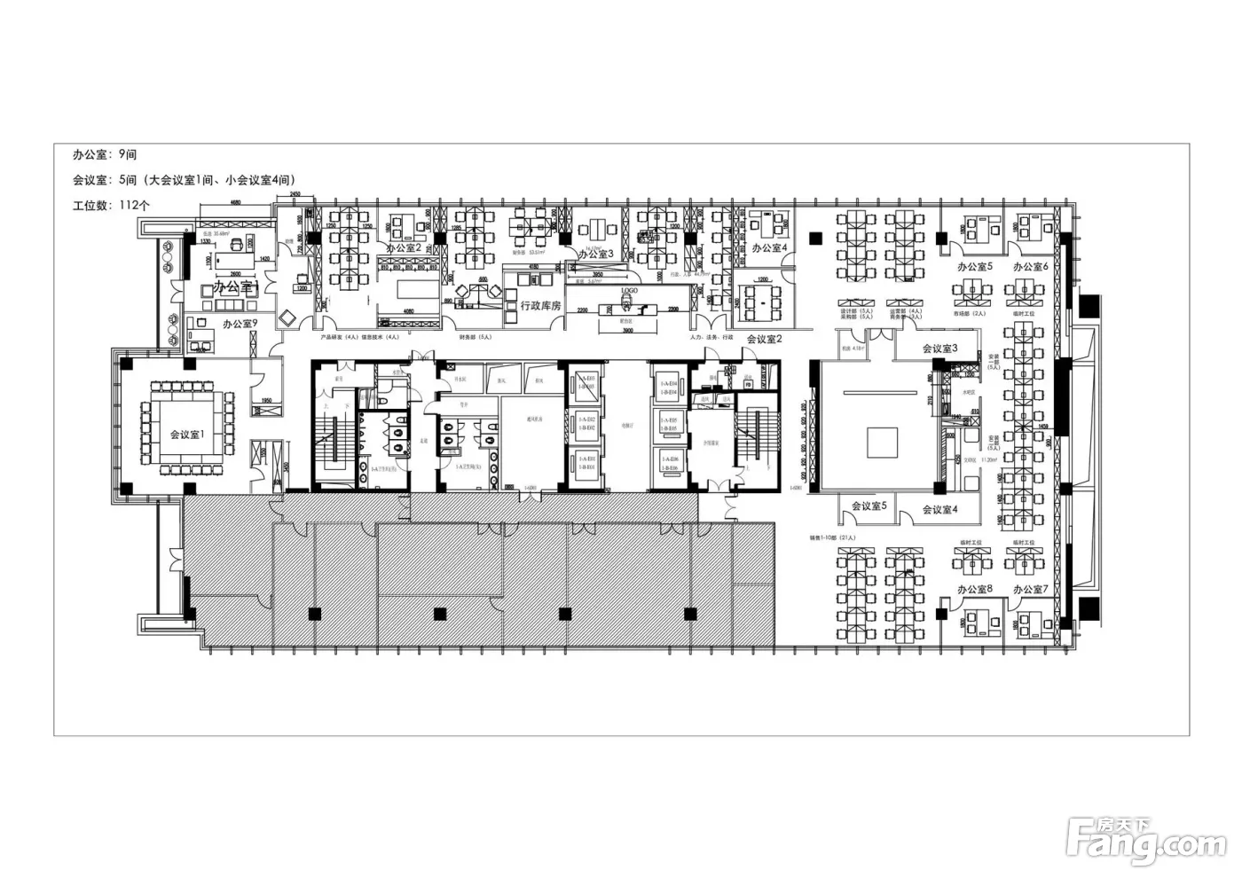
焦奥中心5A写字楼115平至整层1850平米出租林达海渔广场 用地性质:商办 建筑面积:14.8万平米 出租面积:115㎡、398㎡、515㎡、965㎡、1850㎡等 出租价格:3-4.2元/天/㎡(含票、物业费、冷暖费) 付款方式:押3付3 签约年限:2-5年 层数:地上17层 交付状态:遗留装修 层高:大堂50米,标准层3.9米 使用率:70% 绿化率:30% 建筑结构:框架结构 楼板承重:标准层300KG/㎡ 空调系统:VRV中央空调 车位数量:600个 车位费:700/月/台 供电标准:40w/㎡ 物业管理费:30元/月/平米 消防已完成烟感、喷淋、报警、应急、照明、消防门、消防栓等全系统。 招创类型:创意办公、文化艺术、影视传媒、创意IP、科技互联网、体育休闲、旅游等文创项目。 详细信息 焦奥中心项目为中关村朝阳园-垡头中心区首5A 级写字楼,享受北京市中关村,CBD 区域的优惠政策。园区依托北控集团的产业资源,聚集众多优质总部型企业客户和科技创新型企业,逐步形成北京东南区域产业聚集和地标效应。项目位于北京市朝阳区化工路东口,属于环渤海经济区的中心地带,紧邻京哈、京津、京沪高速,具有良好的地理位置。距离东四环4 公里,东五环化工桥1公里。同时,该区域连接北京主、副中心以及京津冀地区的核心地带。
-
服务介绍问经纪人
本人从事房地产行业多年,涉及北京各区,东城、西城、丰台、昌平、海淀、朝阳,通州、大兴、顺义、亦庄、石景山、门头沟等都有项目,多年的地产经验、已经跟很多业主成为朋友,长期合作,希望能为您提供专业服务。
-
周边配套问经纪人
周边配套: 医疗:北京西直河仁安医院,正欣康大药房,北京市朝阳区垡头社区卫生服务中心,北京市朝阳区垡头街道双合家园社区卫生服务站,北京前进诊所,北京十八里店老君堂中医医院,北京民众护理院,北京嘉佳堂大药房,北京惠德明康平价大药房,北京市朝阳区王四营社区卫生服务中心 教育:北京工业技师,北京市工业技师-北院,北京市第五(朝阳双合分校),西直河,朝花(双合西园),东明,北京工业技师行政综合楼,爱心双语,北京市西直河,北京佳华安琪儿 购物:华联大型购物广场,百家福生活超市,西直河商业中心,富运新水暖五金商店,宾常来超市(NO.031),爱玛电
-
交通出行问经纪人
地铁线路:地铁7号线“焦化厂”站约637米 公交线路:348路、457路、486路、637路、夜19路等多条公交线路 距离东五环900米、京津高速、京沪高速路等
朝阳垡头
建成2015年
周边配套
- 免费咨询
- 专业服务
- 区域解读
- 户型分析


