〖京城〗国贸长安街 财源国际中心 1500米 半层 观景
-
5.98元/平米·天
租金
-
精装修
装修
-
1500㎡
建筑面积
租房不踩坑
3000+人正在热聊
加入群聊
-
楼盘名称
IFC财源国际中心
-
区域
朝阳
-
物业费
30元/平米·月
-
类型
纯写字楼
-
等级
暂无
-
挂牌时间
2025-12-30
-
支付方式
押一付三
-
入驻时间
2026-03-02
费用明细
-
押一付三
付款方式
-
5.98
租金(元/平米·天)
-
***
押金
-
***
服务费
- 房租含取暖费吗?
- 房租含物业费吗?
房源描述
-
房源亮点问经纪人
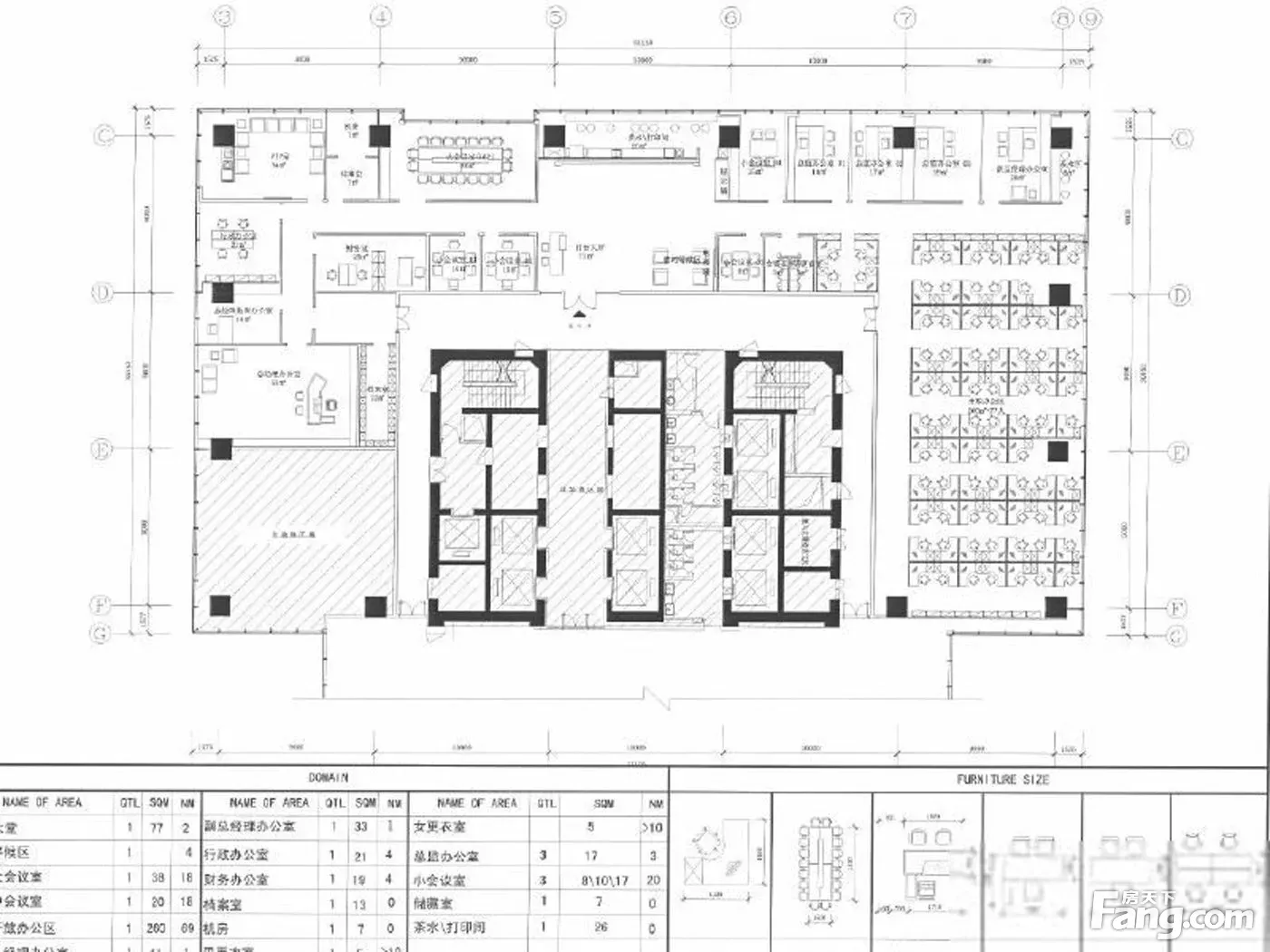
【项目名称】:IFC财源国际中心 【建筑面积】:1500㎡ 【租金报价】:5.98元/㎡/天 【格局分析】:正对电梯、户型方正、布局合理、随时可用房 【装修风格】:透明到顶玻璃墙、豪华家具 【楼层朝向】:南向 【适合公司】:律所、金融、外资、物联网、科技、传媒等多种类型企业 【公共交通】:1/10号线 国贸 站 如对此房不满意可联系咨询,另有周边大量房源可供选择,足不出户,视频看房
-
服务介绍问经纪人
1、全程免费看房、分文不取 2、专业的团队为您匹配适合房源、让您省心、放心 3、强大的资源系统让您360度全面了解项目已经市场情况 4、带看、谈判、验房、签约以及交接全程参与,用无微 公司投诉电话:13911096633 公司投诉电话:13911096633
-
周边配套问经纪人
商业配套齐全、餐饮、银行、便利店、咖啡厅、生鲜超市 1.银行:工行、农行、招商、中信、兴业、民生、农商、广发、北京银行; 2.餐饮休闲:快餐、商务餐厅、健身会所、商务酒店
-
交通出行问经纪人
交通:周边有,附近有多条线路公交汇聚于此,交通四通八达,畅通无阻 项目为地标建筑,位置优越,无论是公共交通或自驾车均可方便到达,便捷的交通,让您工作舒心,下班舒心
朝阳国贸
建成2008年
周边配套
地址:建国门外大街甲8号
- 免费咨询
- 专业服务
- 区域解读
- 户型分析
免责声明:房源信息由网站用户提供,其真实性、合法性由信息提供者负责,最终以政府部门登记备案为准。本网站内容凡涉及面积单位均为建筑面积,本网站不声明或保证内容之正确性和可靠性,租赁该房屋时,请谨慎核查。


