信合花园
8.6分
- 地址
五一路64号
购房不踩坑,3000+人正在热聊
- 6027 元/㎡比上月 3.91%
小区参考价
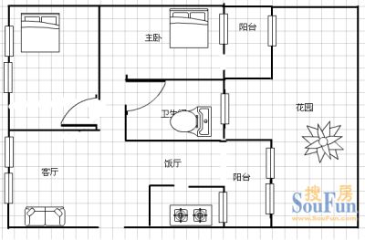
户型齐全,主打明卫,明厨,客厅朝南,双阳台,双卧朝南,主卧朝南三居
信合花园户型主要有106平-133平的明卫,明厨,客厅朝南,双阳台,双卧朝南,主卧朝南的三居 、154平-154平的户型方正,明卫,客厅朝南,双阳台的四居 。
*获取完整户型报告,同时会有免费语音讲解服务
小区行情周报
04月18日-04月24日小区攻略
攻略
小区信息全方位解读
特点全面解析

小区概况
- 建筑年代
2000
- 物业类型
普通住宅
- 房屋总数
240户
- 楼栋总数
3栋
- 绿化率
30%
- 容积率
2.00
- 建筑面积
暂无
- 供暖
自供暖
- 供电
民用电
- 供水
民用水
- 供气
暂无
- 产权描述
普通住宅产权为70年
- 建筑类型
板楼
- 物业费
0.5元/㎡·月
- 区域
温江 温江城区
- 物业公司
小区物管
- 停车位
地面停车
- 地上车位
100个
- 开发商
无开发商

详情解读
周边配套
地址:五一路64号
交通综合评分
查看全部7.0
“较好”
超过成都16.1%的小区
- 地铁公交10.0
- 驾车出行10.0

交通解读

楼栋解读
- 7332元/㎡
本月挂牌均价
- 1.13%
环比上月
推荐楼盘
8.6
综合测评得分
- 小区品质8.4
- 户型评分9.1
免责声明*小区中涉及的价格经由房天下大数据统计分析计算得出,价格统计不能覆盖所有房源,并且有滞后,仅供参考。



























