怡馨苑
8.8分
- 地址
南熏大道二段988号
购房不踩坑,3000+人正在热聊
- 6459 元/㎡比上月 2.43%
小区参考价
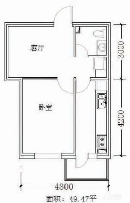
户型齐全,主打明卫,明厨,双阳台二居
怡馨苑户型主要有97平-97平的明卫,明厨,双阳台的二居 、116平-128平的明厨,明卫,双阳台的三居 。
*获取完整户型报告,同时会有免费语音讲解服务
小区行情周报
04月25日-05月01日小区攻略
攻略
小区信息全方位解读
特点全面解析

小区概况
- 建筑年代
2004
- 物业类型
普通住宅
- 房屋总数
200户
- 楼栋总数
3栋
- 绿化率
35%
- 容积率
2.00
- 建筑面积
暂无
- 供暖
自供暖
- 供电
民用电
- 供水
民用水
- 供气
暂无
- 产权描述
普通住宅产权为70年
- 建筑类型
板楼
- 物业费
1元/㎡·月
- 区域
温江 温江城区
- 物业公司
小区物业
- 停车位
地面停车
- 地上车位
50个
- 开发商
成都欣发房地产开发有限公司

详情解读
周边配套
地址:南熏大道二段988号
交通综合评分
查看全部7.0
“较好”
超过成都12.4%的小区
- 地铁公交10.0
- 驾车出行10.0

交通解读

楼栋解读
- 7325元/㎡
本月挂牌均价
- 0.09%
环比上月
推荐楼盘
8.8
综合测评得分
- 小区品质8.5
- 户型评分9.3
免责声明*小区中涉及的价格经由房天下大数据统计分析计算得出,价格统计不能覆盖所有房源,并且有滞后,仅供参考。























