清溪南街7号院
8.3分
- 地址
清溪南街7号
购房不踩坑,3000+人正在热聊
- 10942 元/㎡比上月 5.67%
小区参考价
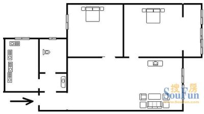
户型齐全,主打明卫,主卧朝南二居
清溪南街7号院户型主要有66平-72平的明卫,主卧朝南的二居 、20平-88平的户型方正,明厨,明卫,客厅朝南,全明格局的三居 。
*获取完整户型报告,同时会有免费语音讲解服务
小区行情周报
04月25日-05月01日小区攻略
攻略
小区信息全方位解读
特点全面解析

小区概况
- 建筑年代
1998
- 物业类型
普通住宅
- 房屋总数
200户
- 楼栋总数
1栋
- 绿化率
38%
- 容积率
3.20
- 建筑面积
56238.0㎡
- 供暖
自供暖
- 供电
民用电
- 供水
民用水
- 供气
暂无
- 产权描述
普通住宅产权为70年
- 建筑类型
板楼
- 物业费
0.4元/㎡·月
- 区域
青羊 府南新区
- 物业公司
街道办事处(居委会)代管物业
- 停车位
小区内靠边停车
- 地上车位
10个
- 开发商
星发展(中国)私人有限公司

详情解读
周边配套
地址:清溪南街7号
交通综合评分
查看全部4.0
“一般”
超过成都44.4%的小区
- 地铁公交10.0

交通解读

楼栋解读
- 12368元/㎡
本月挂牌均价
- 持平
环比上月
推荐楼盘
8.3
综合测评得分
- 小区品质8.2
- 户型评分8.3
免责声明*小区中涉及的价格经由房天下大数据统计分析计算得出,价格统计不能覆盖所有房源,并且有滞后,仅供参考。






















