瑞泉生活广场
- 地址
涌泉街道凤凰街188号
购房不踩坑,3000+人正在热聊
- 7123 元/㎡比上月 12.51%
小区参考价
小区攻略
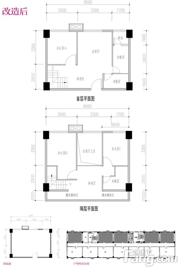
攻略
小区信息全方位解读
特点全面解析

小区概况
- 建筑年代
2019
- 物业类型
商住公寓
- 绿化率
30%
- 容积率
2.99
- 建筑面积
37534.53㎡
- 建筑类型
暂无
- 物业费
2.5元/㎡·月
- 物业公司
成都市泰和物业管理有限公司
- 停车位
284
- 开发商
成都瑞泉房地产开发有限公司

详情解读
周边配套
地址:涌泉街道凤凰街188号
- 12368元/㎡
本月挂牌均价
- 0.74%
环比上月
推荐楼盘
免责声明*小区中涉及的价格经由房天下大数据统计分析计算得出,价格统计不能覆盖所有房源,并且有滞后,仅供参考。














