双楠融域
9.3分
- 地址
栖霞路1号(外双楠农贸市场对面)
购房不踩坑,3000+人正在热聊
- 18619 元/㎡比上月 持平
小区参考价
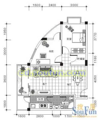
户型齐全,主打独立衣帽间,明卫,双阳台,主卧朝南三居
双楠融域户型主要有93平-138平的独立衣帽间,明卫,双阳台,主卧朝南的三居 、73平-87平的户型方正,双阳台的二居 、130平-184平的户型方正,明卫,双阳台,主卧朝南,独立衣帽间的四居 。
*获取完整户型报告,同时会有免费语音讲解服务
小区行情周报
01月24日-01月30日小区攻略
攻略
小区信息全方位解读
特点全面解析

小区概况
- 建筑年代
2007
- 物业类型
普通住宅
- 房屋总数
229户
- 楼栋总数
5栋
- 绿化率
30%
- 容积率
1.60
- 建筑面积
52000.0㎡
- 供暖
自供暖
- 供电
商用电,民用电
- 供水
商用水,民用水
- 供气
暂无
- 产权描述
普通住宅产权为70年
- 建筑类型
板楼
- 物业费
1.2元/㎡·月
- 区域
武侯 外双楠
- 物业公司
戴得梁行
- 停车位
189个
- 地上车位
289个
- 开发商
成都中源实业有限公司

详情解读
周边配套
地址:栖霞路1号(外双楠农贸市场对面)
交通综合评分
查看全部7.0
“较好”
超过成都34.2%的小区
- 地铁公交10.0
- 驾车出行10.0

交通解读

楼栋解读
- 15787元/㎡
本月挂牌均价
- 0.39%
环比上月
推荐楼盘
9.3
综合测评得分
- 小区品质8.5
- 户型评分9.1
- 区位交通10.0
- 教育资源9.2
- 生活服务10.0
免责声明*小区中涉及的价格经由房天下大数据统计分析计算得出,价格统计不能覆盖所有房源,并且有滞后,仅供参考。






















