三家店新河路小区
8.9分
- 地址
新河路6号
购房不踩坑 3000+人正在热聊
- 15662 元/㎡比上月 0.63%
小区参考价
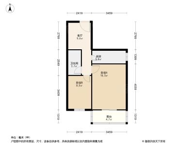
户型齐全,主打明厨,双卧朝南二居
三家店新河路小区户型主要有51平-85平的明厨,双卧朝南的二居 、56平-82平的户型方正,明厨,主卧朝南的三居 。
*获取完整户型报告,同时会有免费语音讲解服务
小区行情周报
01月24日-01月30日小区攻略
攻略
小区信息全方位解读
特点全面解析

小区概况
- 建筑年代
2000
- 物业类型
普通住宅
- 房屋总数
212户
- 楼栋总数
5栋
- 绿化率
30%
- 容积率
1.50
- 建筑面积
暂无
- 供暖
集中供暖
- 供电
民用电
- 供水
民用水
- 供气
暂无
- 产权描述
普通住宅产权为70年
- 建筑类型
板楼
- 物业费
1.30元/㎡·月
- 区域
门头沟 城子
- 物业公司
无物业公司
- 停车位
暂无
- 地上车位
70个
- 开发商
无开发商

详情解读
周边配套
地址:新河路6号
交通综合评分
查看全部6.3
“较好”
超过北京40.1%的小区
- 地铁公交5.0
- 驾车出行10.0
- 城际交通4.5

交通解读

楼栋解读
- 23458元/㎡
本月挂牌均价
- 1.71%
环比上月
- 推荐经纪人
推荐楼盘
8.9
综合测评得分
- 小区品质8.5
- 户型评分9.8
免责声明*小区中涉及的价格经由房天下大数据统计分析计算得出,价格统计不能覆盖所有房源,并且有滞后,仅供参考。





























