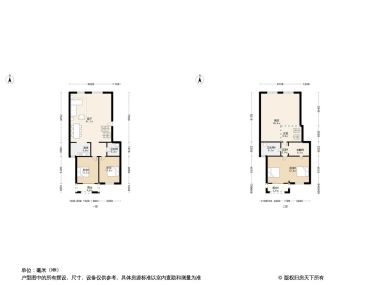
4室2厅3卫1厨
售完普罗旺世龙之梦4居室户型图 | 建面:179㎡ | 朝向:朝南
- 所属楼盘
价格待定算月供
实际价格以售楼处为准,户型图为开发商提供,具体以实际交房标准为准
微信打开
查看完整户型评测8.9
户型评分
- 基础测评9.5
- 采光通风8
户型信息
- 4个阳台
- 1个明卫
- 明厨
- 户型方正
- 明厨
- 明卫
- 双卧朝南
房屋细节
卧室F
优秀卧室F朝南,光线明亮而柔和,通风顺畅,为您的私密空间带来一份自然的宁静与安逸,无论是小憩片刻还是长夜安睡,都能感受到阳光的温暖照耀。
卧室A
优秀卧室A朝南,光线充足且柔和,通风效果出色,为您的私密领地打造一处自然舒适的休憩空间,无论是午后小憩还是夜晚安睡,都能感受到阳光的温馨陪伴。
4室2厅2卫售完9.4“优秀”
价格待定210.00㎡
4室1厅2卫售完9.4“优秀”
价格待定208.77㎡
4室2厅2卫售完9.3“优秀”
价格待定210.00㎡
4室2厅3卫售完8.9“良好”
价格待定179.00㎡
4室2厅2卫售完8.9“良好”
价格待定210.00㎡
4室2厅3卫售完9.3“优秀”
价格待定210.00㎡
4室2厅2卫售完9“优秀”
价格待定210.00㎡
4室2厅3卫售完9.8“极佳”
价格待定210.00㎡
4室2厅2卫售完9.5“极佳”
价格待定210.00㎡
4室2厅2卫售完9.2“优秀”
价格待定209.26㎡
4室2厅2卫售完8.9“良好”
价格待定210.00㎡
4室2厅2卫售完9.4“优秀”
价格待定260.00㎡
4室2厅2卫售完9.4“优秀”
价格待定160.00㎡
4室2厅2卫售完9.5“极佳”
价格待定160.00㎡
4室2厅2卫售完9.3“优秀”
价格待定160.00㎡
4室2厅3卫售完9.7“极佳”
价格待定201.00㎡
对此楼盘感兴趣的人还浏览了
兰溪府
26880元/平方米
郑东新区-北龙湖用户评分9.48分
在售品牌地产豪华居住区宜居生态地产改善优选地铁沿线
亚新星云湾
41000元/平方米
郑东新区-北龙湖用户评分9.61分
在售低密居所改善优选装修交付
中海云著湖居
33000元/平方米
郑东新区-北龙湖用户评分9.7分
在售品牌地产低密居所改善优选装修交付洋房
查看全部

优秀






























