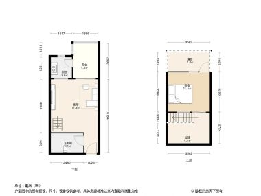
1室1卫1厨
售完响水湾1居室户型图 | 建面:39.53㎡ | 朝向:东南
- 所属楼盘
价格待定算月供
实际价格以售楼处为准,户型图为开发商提供,具体以实际交房标准为准
微信打开
查看完整户型评测8.9
户型评分
- 基础测评8.5
- 空间测评9
- 采光通风9.3
户型信息
- 明厨
- 次卧带卫生间
- 明厨
- 主卧朝南
空间测评优秀9空间测评指标


- 面宽

- 进深
*施工有误差,交付时无法与户型图一致,仅供参考,最终以开发商合同为准
| 面积(㎡) | 面宽(m) | 进深(m) | 评价 | |
|---|---|---|---|---|
| 卧室 | 21.2 | 4.6 | 7.2 | 极佳 |
| 厨房 | 2.7 | 1.6 | 1.7 | 良好 |
| 卫生间 | 3 | 2.4 | 1.3 | 良好 |
*户型数据为人工测量或估算值,可能于实际情况存在误差,仅供参考,实际数据以开发商发布为准。
通风测评优秀9.3


- 开窗

- 风向
*施工有误差,交付时无法与户型图一致,仅供参考,最终以开发商合同为准
采光测评优秀9.3采光测评的指标
| 采光性 | 评价 | |
|---|---|---|
| 卧室 | 极佳 | |
| 厨房 | 极佳 |
*户型数据为人工测量或估算值,可能于实际情况存在误差,仅供参考,实际数据以开发商发布为准。
房屋细节
卧室 21.2㎡ | 面宽4.6m | 进深7.2m
空间可容纳
床
1.8m*2m
床头柜X2
0.4m宽
衣柜
0.6m深
- 空间较大宽敞明亮的卧室,让您的生活更加轻松惬意。
- 朝东卧室朝东,清晨的阳光透过窗户洒满整个空间,为您带来新一天的活力与喜悦,让您在早晨就能感受到生活的美好。
优秀卧室的落地窗设计,将室内与室外美景完美融合,为您带来一场视觉的盛宴。
厨房 2.7㎡ | 面宽1.6m | 进深1.7m
- 空间适中适度的厨房面积,让您的烹饪过程更加得心应手,提升生活品质。
- 明厨宽敞的厨房窗户,让自然光尽情洒落,烹饪时仿佛置身于大自然之中,享受家的宁静与美好。
卫生间 3㎡ | 面宽2.4m | 进深1.3m
- 空间适中卫生间虽小,却别具一格,空间利用得当,让日常洗漱变得轻松愉快。
2室1厅1卫售完9.3“优秀”
价格待定59.46㎡
2室2厅1卫售完9.6“极佳”
价格待定95.11㎡
2室2厅1卫售完9.3“优秀”
价格待定95.11㎡
2室1厅1卫售完8.6“良好”
价格待定68.40㎡
2室1厅1卫售完9.2“优秀”
价格待定71.00㎡
2室1厅1卫售完8.2“良好”
价格待定82.38㎡
2室1厅1卫售完8.2“良好”
价格待定68.40㎡
2室2厅1卫售完8.9“良好”
价格待定100.58㎡
2室2厅1卫售完9.2“优秀”
价格待定83.41㎡
2室2厅1卫售完9.4“优秀”
价格待定96.00㎡
2室1厅1卫售完9.1“优秀”
价格待定60.00㎡
2室1厅1卫售完9.5“极佳”
价格待定84.00㎡
2室2厅1卫售完9.5“极佳”
价格待定84.00㎡
2室2厅1卫售完9.4“优秀”
价格待定95.11㎡
2室2厅1卫售完10“极佳”
0.0097.00㎡
对此楼盘感兴趣的人还浏览了
亚星九邸
13800元/平方米
二七-二七新城用户评分9.01分
在售豪华居住区水景地产教育地产改善优选大平层
亚星盛世云水居
10500元/平方米
二七-二七新城用户评分9.16分
在售品牌地产
招商·林屿境
12000元/平方米
二七-二七新城用户评分9.49分
售完地铁沿线低密居所
查看全部





优秀












































