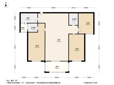
3室2厅2卫1厨
售完增源航都绿洲3居室户型图 | 建面:139.4㎡ | 朝向:南北通透
- 所属楼盘
价格待定算月供
实际价格以售楼处为准,户型图为开发商提供,具体以实际交房标准为准
微信打开
查看完整户型评测9.2
户型评分
- 基础测评9.5
- 空间测评8.9
- 采光通风9.1
户型信息
- 2个阳台
- 2个明卫
- 明厨
- 次卧带卫生间
- 户型方正
- 明卫
- 明厨
- 客厅朝南
- 双阳台
空间测评良好8.9空间测评指标

*施工有误差,交付时无法与户型图一致,仅供参考,最终以开发商合同为准
- 客厅:极佳
- 餐厅:良好
- 卧室A:良好
- 卧室B:良好
- 卧室C:极佳
- 厨房:优秀
- 卫生间A:良好
- 卫生间B:良好
- 阳台A:良好
- 阳台B:良好
通风测评优秀9.1


- 开窗

- 风向
*施工有误差,交付时无法与户型图一致,仅供参考,最终以开发商合同为准
采光测评优秀9.1采光测评的指标
| 采光性 | 评价 | |
|---|---|---|
| 客厅 | 普通 | |
| 卧室A | 优秀 | |
| 卧室B | 优秀 | |
| 厨房 | 良好 | |
| 卫生间A | 极佳 | |
| 卫生间B | 极佳 | |
| 阳台A | 极佳 | |
| 阳台B | 极佳 |
*户型数据为人工测量或估算值,可能于实际情况存在误差,仅供参考,实际数据以开发商发布为准。
房屋细节
客厅
- 空间豪华豪华客厅宽敞舒适,无论是家庭聚会还是接待客人,都能展现出主人的尊贵气质。
优秀客厅朝南而建,明亮通透,阳光透过窗户洒进室内,让空间充满生机与温暖,是您与家人共度欢乐时光、享受家庭温馨的温馨场所。
优秀客厅的落地窗设计,让光线自由穿梭,为空间注入生机与活力,营造出一种轻松愉悦的生活氛围。
卧室A
空间可容纳
床
1.8m*2m
床头柜X2
0.4m宽
衣柜
0.6m深
- 空间适中尽管卧室A面积有限,但设计师却巧妙地将每一寸空间都利用起来,打造出一个精致而舒适的休憩环境。
- 有窗卧室A的窗户,如同一扇通往自然的门,让您随时都能感受到室外的美景与气息。
卧室B
空间可容纳
床
1.8m*2m
床头柜X2
0.4m宽
衣柜
0.6m深
- 空间适中尽管卧室B面积有限,但设计师巧妙地利用每一寸空间,布局合理,使这个小小的角落成为您放松身心的温馨之地。
- 有窗卧室B拥有明亮的窗户,让您在享受舒适睡眠的同时,也能感受到自然光的温暖与照耀,让您的生活更加美好。
卧室C
空间可容纳
床
1.8m*2m
床头柜X2
0.4m宽
衣柜
0.6m深
- 空间较大卧室C空间开阔,无论是休息还是储物,都能满足您的需求。
厨房
- 空间较大厨房面积宽敞,多人协作料理更加轻松,同时容纳冰箱等家电,打造温馨厨房。
- 明厨厨房设计注重通风采光,窗户设计合理,让烹饪时光更加明亮舒适,增添家的幸福感。
卫生间A
- 空间适中精致设计的卫生间A,空间利用恰到好处,让您的洗浴时光更加轻松愉悦。
- 明卫卫生间A的窗户设计,让自然光与新鲜空气自由流通,为居住者带来清新舒适的卫浴体验。
卫生间B
- 空间适中卫生间B空间适中,既不过于紧凑也不过于空旷,让您的洗浴体验更加舒适自然。
- 明卫明亮的光线透过卫生间B的窗户洒落,不仅提升了空间感,还使卫浴体验更加愉悦。
对此楼盘感兴趣的人还浏览了
航天基地航天北路以北、航天西路以东
价格待定
航天新城-航天大道用户评分0.0分
待售
东长安国际
12000元/平方米
航天新城-航天大道用户评分0.0分
在售地铁沿线
陕建·航天新天地
13500元/平方米
航天新城-航天大道用户评分9.09分
在售品牌地产地铁沿线不限购复合地产
查看全部





优秀











































