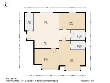
1室1厅1卫
售完中央生活城1居室户型图 | 建面:45㎡ | 朝向:朝西
- 所属楼盘
价格待定算月供
实际价格以售楼处为准,户型图为开发商提供,具体以实际交房标准为准
微信打开
查看完整户型评测8.8
户型评分
- 基础测评7
- 空间测评10
- 采光通风10
空间测评极佳10空间测评指标

*施工有误差,交付时无法与户型图一致,仅供参考,最终以开发商合同为准
- 卧室A:极佳
- 卧室B:极佳
通风测评极佳10


- 开窗

- 风向
*施工有误差,交付时无法与户型图一致,仅供参考,最终以开发商合同为准
采光测评极佳10采光测评的指标
| 采光性 | 评价 | |
|---|---|---|
| 卧室A | 极佳 | |
| 卧室B | 极佳 |
*户型数据为人工测量或估算值,可能于实际情况存在误差,仅供参考,实际数据以开发商发布为准。
房屋细节
卧室A
空间可容纳
床
1.8m*2m
床头柜X2
0.4m宽
衣柜
0.6m深
- 空间较大卧室A空间开阔,无论是休息还是储物,都能满足您的需求。
- 朝西朝西的卧室A视野开阔,傍晚时分,落日美景尽收眼底,让您在窗前感受大自然的宁静与和谐,放松心情。
优秀卧室A宽敞明亮,落地窗让自然光洒满每个角落,为您带来宁静与舒适的居住体验。
卧室B
空间可容纳
床
1.8m*2m
床头柜X2
0.4m宽
衣柜
0.6m深
- 空间较大卧室B空间足够大,让您在布置家具时更加灵活自如。
- 朝西朝西的卧室B视野极佳,傍晚时分,落日的美景一览无余,让您在窗前感受大自然的和谐与宁静,放松心情。
优秀卧室B俯瞰美景,落地窗尽显大气与明亮,让您每天醒来时都能享受自然光的温暖和窗外景色的美丽。
对此楼盘感兴趣的人还浏览了
查看全部




优秀







































