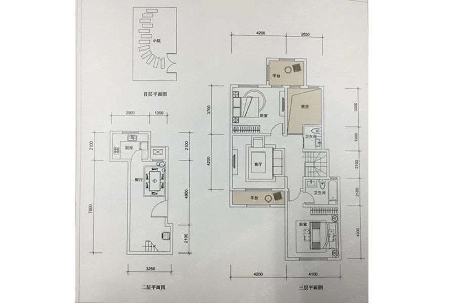
3室2厅2卫1厨
售完一期叠拼别墅L3户型 | 建面:0㎡ | 朝向:
- 所属楼栋
3栋
- 所属楼盘
价格待定算月供
实际价格以售楼处为准,户型图为开发商提供,具体以实际交房标准为准
微信打开
查看完整户型评测户型信息
- 南北通透
- 主卧带卫
- 厨卫不对门
- 户型方正
- 客厅朝南
- 主卧朝南
对此楼盘感兴趣的人还浏览了
新华常春藤
6500元/平方米
静海-团泊湖东区用户评分8.2分
在售低密居所低总价小户型中式地产刚需必看
绿地海域香颂
168万元/套起
静海-团泊湖东区用户评分8.47分
在售宜居生态地产改善优选低密居所
天津富力新城
5500元/平方米
静海-团泊湖东区用户评分8.16分
在售品牌地产低总价小户型现房湖景地产洋房
查看全部



















