沈阳恒大世界城
别名:恒大世界城
订阅消息将通过短信及推送等形式通知您
优惠活动
- 1室1厅1卫 在售52.84㎡19985.00
- 2室2厅1卫 在售62.00㎡19985.00
- 2室2厅1卫 在售65.96㎡19985.00
- 2室2厅1卫 在售72.00㎡19985.00
- 2室2厅1卫 在售73.07㎡19985.00
- 2室2厅1卫 在售79.25㎡19985.00
- 2室2厅1卫 在售97.26㎡19985.00
- 2室2厅1卫 在售104.00㎡19985.00
- 2室2厅1卫 在售108.51㎡19985.00
- 3室2厅1卫 在售136.19㎡19985.00
- 1室1厅1卫 待售42.00㎡84万元/套
- 1室1厅1卫 待售43.00㎡86万元/套
- 1室1厅1卫 待售48.00㎡96万元/套
- 1室1厅1卫 待售49.00㎡98万元/套
- 1室1厅1卫 待售52.00㎡104万元/套
- 2室2厅1卫 待售77.00㎡价格待定
- 2室2厅1卫 待售80.00㎡160万元/套
- 2室2厅1卫 待售94.00㎡188万元/套
- 3室2厅1卫 待售131.00㎡262万元/套
- 3室2厅2卫 待售131.00㎡262万元/套
- 1室1厅1卫 待售49.00㎡98万元/套
楼盘价值分析报告
楼盘评分
- 项目户型 9.2
- 交通配套 10.0
- 教育配套 10.0
- 生活配套 10.0
交通配套
周边直线3km范围内有15个地铁站(市府大路、皇寺路、人民广场、南市场、太原街、青年大街、金融中心、沈阳站、沈阳北站、岐山路、怀远门、南五马路、青年公园、重型文化广场、长江街),轨道交通发达,距离最近的地铁站是市府大路。周边直线1km内有24个公交站,距离最近的西塔东站仅有134m,周边公共交通极为便捷。
教育配套
直线3km范围内有148个幼儿园。直线3km范围内有40个小学,如沈阳市实验学校小学二部、沈阳市实验学校小学三部、沈阳市实验学校小学部、回族小学、沈阳市实验学校大西部等。直线3km范围内有37个中学,如和平区教师进修学校附属中学、沈阳市第二十中学主校区、沈阳市实验学校中学二部、岐山一校(至善校区)、沈阳市共青团实验中学等。
生活配套
楼盘周边医疗资源较为丰富,直线3km范围内有45个一级及以上医院。其中沈阳医学院附属第二医院(和平院区)距离楼盘222m,中国医科大学附属口腔医院(总院)距离楼盘824m,中国医科大学附属第一医院距离楼盘1.1km,中国医科大学沈阳市第四人民医院南院区距离楼盘1.7km,沈阳市第四人民医院距离楼盘1.7km,等等,为医疗需求提供了可靠保障。楼盘周边3km范围内有44个商场,包括市府恒隆广场、华府天地购物中心(哈尔滨路)、千姿汇、沈阳百联购物中心、潮汇店(太原街步行街店)等购物中心,商业配套成熟,完全可以满足日常购物需求。楼盘周边生态环境优越,周边3km范围内有186个公园,距离最近的仅107m,非常方便日常休闲使用。
- 总楼栋:
12栋
- 规划户数:
4106户
- 占地面积:
71600.00㎡
- 建筑面积:
1118000.00㎡
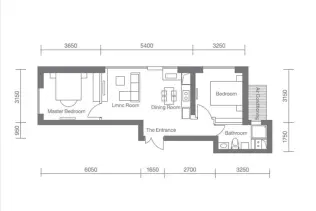
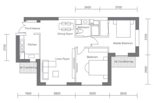
户型还算方正,得房率也属于中等水平。旁边没啥小区,感觉有点荒,你们觉得呢?
这几个户型还挺不错65.96㎡(2室2厅1卫),52.84㎡(1室1厅1卫)小区不大,房子不少,感觉前后楼距离有点儿近,不知道住在低层会不会影响采光
对此楼盘感兴趣的人还浏览了

润熙府
15000元/平方米铁西-北二路用户评分9.41分
在售第四代住宅品牌地产改善优选联合开发洋房
诺德·阅香湖
16500元/平方米于洪-丁香湖新城用户评分9.34分
在售品牌地产现房景观居所水景地产改善优选地铁沿线
越秀·珑御山
12000元/平方米沈北新区-辉山用户评分8.64分
在售特色别墅低密居所
中瑞·凌空里
10500元/平方米铁西用户评分9.29分
在售地铁沿线刚需必看
龙湖方林·昱樘
22000元/平方米皇姑-北行用户评分9.25分
售完品牌地产地铁沿线低总价小户型刚需必看装修交付
华润置地|御华府
8500元/平方米苏家屯-会展中心用户评分9.22分
在售品牌地产洋房
龙湖华煜·江与城
6100元/平方米浑南-沈抚新城用户评分9.01分
在售品牌地产装修交付洋房
金地金城·领峯
18000元/平方米皇姑-北行用户评分9.33分
在售刚需必看装修交付地铁沿线
华润置地|九悦
20000元/平方米皇姑用户评分9.46分
在售品牌地产改善优选装修交付地铁沿线大平层
富力·国金中心
20000元/平方米沈河-北站用户评分9.36分
在售品牌地产装修交付地铁沿线
打开房天下APP,查看更多内容
立即打开
















































